direct naar inhoud van Toelichting
Plan: TAM-omgevingsplan Hoofdstuk 22p Ringweg ongen. Ysselsteyn Houbensteyn
Status: ontwerp
Plantype: bestemmingsplan
IMRO-idn: NL.IMRO.0984.TAM25012-on01

Toelichting

Hoofdstuk 1 Inleiding

1.1 Aanleiding voor het initiatief

Initiatiefnemer is voornemens om aan de Ringweg te Ysselsteyn, ten noorden van nummer 12, een nieuwe woning te realiseren (dit is deellocatie Ringweg ongenummerd., kadastraal bekend als Venray sectie M nummer 2093). Ten behoeve van deze ontwikkeling wordt het recht tot het bouwen van een bedrijfswoning aan de Ysselsteynseweg 40 te Heide verwijderd (dit is deellocatie Ysselsteynseweg 40, kadastraal bekend als Venray sectie N nummer 1806). De varkenshouderij op de deellocatie Ysselsteynseweg 40 wordt gesaneerd in het kader van de Landelijke beëindigingsregeling veehouderijlocaties met piekbelasting (Lbv-plus). Op deze locatie wordt de mogelijkheid voor een intensieve veehouderij wegbestemd. Gezien de bedrijfsvoering ter plaatse is hier geen noodzaak meer voor een bedrijfswoning. Met het oog op de behoefte naar woningen in de gemeente Venray, is verplaatsing van (het bouwrecht van) de woning naar de rand van Ysselsteyn meer passend binnen de actuele behoefte.

Omdat deze ontwikkeling niet past in het omgevingsplan van de gemeente Venray, maar dit initiatief wel wenselijk is, wordt middels voorliggende wijziging van het omgevingsplan (middels TAM-IMRO) medewerking verleend aan de voorgenomen activiteit. Dit heeft de gemeente Venray meegegeven in het principebesluit d.d. 29 april 2025, met dien verstande dat sprake is van maatwerk in een speciale situatie. Het verplaatsen van het bouwrecht van de woning van de deellocatie Ysselsteynseweg 40 naar de deellocatie Ringweg ongenummerd is ondersteunend aan een groter plan waarmee de varkenshouderijen aan de Ysselsteynseweg 40, 42, 63, 65, 67 en 78 worden gesaneerd. Binnen de bebouwde kom van Ysselsteyn bevinden zich diverse woningen waar sprake is van een flink overbelaste situatie ten aanzien van geur (zowel voorgrond- als achtergrondbelasting). Met de sanering van de eerder genoemde varkenshouderijen wordt de geuroverbelaste situatie op al die woningen opgeheven - alle woningen binnen de bebouwde van Ysselsteyn (op één woning na) voldoen dan aan de geurnorm voor een aanvaardbaar woon- en leefklimaat. Die ene woning ligt overigens op een afstand van circa 750m van het plangebied, dicht bij een andere veehouderij aan de zuidkant van Ysselsteyn.

1.2 Ligging plangebied

Het plangebied bestaat uit twee deellocaties. De deellocatie Ringweg ongenummerd. is de locatie aan de rand van de kern Ysselsteyn waar de beoogde woning is voorzien, deze locatie ligt ten noorden van het adres Ringweg 12. De deellocatie Ringweg ongenummerd is kadastraal bekend als sectie M nummers 1502, 1601, 1613, 1728, 1729, 1992, 1998, en 2093. De deellocatie Ysselsteynseweg 40 bevindt zich aan de Ysselsteynseweg 40 te Heide, ten noordoosten van de deellocatie Ringweg ongenummerd. De deellocatie Ysselsteynseweg 40 is kadastraal bekend als sectie N nummer 1059. Onderstaande afbeelding toont globaal de ligging van het plangebied in de omgeving.

afbeelding "i_NL.IMRO.0984.TAM25012-on01_0002.png"

Globale ligging plangebied in omgeving (bron: OpenStreetMap)

1.3 Leeswijzer

Na dit inleidende hoofdstuk is in hoofdstuk 2 het initiatief beschreven. In hoofdstuk 3 wordt ingegaan op het relevante Rijks-, provinciale, regionale en gemeentelijke beleid. In hoofdstuk 4 is het project inhoudelijk getoetst in het kader van een veilige en gezonde leefomgeving, waarna in hoofdstuk 5 de omgevingskwaliteit aan bod komt. In hoofdstuk 6 volgt de integrale weging van alle aspecten in het kader van de evenwichtige toedeling van functies aan locaties. Daarna wordt in hoofdstuk 7 ingegaan op de juridische planbeschrijving. Hoofdstuk 8 behandelt de aspecten participatie en kostenverhaal.

Hoofdstuk 2 Voorgenomen ontwikkeling

In dit hoofdstuk wordt het initiatief beschreven. Eerst wordt ingegaan op de bestaande situatie van het plangebied en de relatie met de omgeving. Daarna wordt ingezoomd op het beoogde initiatief.

2.1 Huidige situatie

Het plangebied bestaat uit twee deellocaties. Deze worden navolgend beschreven.

Deellocatie Ringweg ongenummerd

Deze deellocatie ligt aan de Ringweg, aan de oostelijke rand van de kern Ysselsteyn, op een perceel agrarische (onbebouwde) grond ten noorden van de bestaande woning op nummer 12. De locatie vormt momenteel een open ruimte in het bestaande bebouwingslint, dat verder voornamelijk bestaat uit woonpercelen. De locatie maakt onderdeel uit van de overgangszone tussen de dorpskern en het omliggende landelijke gebied.

Het perceel is in gebruik als grasland en bevat aan drie zijden een groensingel met centraal boomgaardje met hoogstamfruitbomen. De singel dateert uit de jaren tachtig en verkeert in matige tot redelijke staat; de boomgaard is rond 2012 aangelegd. Visueel wordt het perceel met name waargenomen vanaf de Ringweg en deels vanaf de Pottevenweg.

Navolgende afbeelding geeft de deellocatie Ringweg ongenummerd weer middels een luchtfoto.

afbeelding "i_NL.IMRO.0984.TAM25012-on01_0003.png"

Luchtfoto van het deellocatie 1 waarbij het plangebied rood is omkaderd (bron: Pdok)

Deellocatie Ysselsteynseweg 40

De deellocatie Ysselsteynseweg 40 omvat het agrarische erf met bedrijfsgebouwen van de varkenshouderij aan de Ysselsteynseweg 40 te Heide. De begrenzing van het plangebied van deze deellocatie is gelijk aan het bouwvlak uit het vigerende bestemmingsplan (zie verder 3.5.8). Navolgende afbeelding geeft dit weer.

afbeelding "i_NL.IMRO.0984.TAM25012-on01_0004.png"

Luchtfoto van het deellocatie 2 waarbij het plangebied rood is omkaderd (bron: ruimtelijkeplannen.nl)

Binnen de deellocatie Ysselsteynseweg 40 is volgens het omgevingsplan een bedrijfswoning toegestaan.

Er is geen nut en noodzaak meer voor deze (nog niet gebouwde) bedrijfswoning omdat deze voor de bedrijfsvoering en het toezicht op het bedrijf niet meer strikt noodzakelijk is. De nabijheid van een bedrijfswoning is ook niet langer noodzakelijk en gewenst omdat vanwege technologische vooruitgang, zoals camera's toezicht op het bedrijf kan worden gehouden. Er is daarmee geen sprake meer van een permanente noodzaak. Daarnaast kan een bedrijfswoning belemmerend werken voor het aan de andere zijde van de Ysselsteynseweg gelegen bedrijf. Omdat er geen behoefte meer is aan de bedrijfswoning maar er tegelijkertijd wél behoefte is aan een burgerwoning in de kernrandzone van Ysselsteyn wordt het bouwrecht verplaatst.

Vanwege het woon- en leefklimaat is de deellocatie Ringweg ongenummerd geschikter om een woning op te bouwen dan op de deellocatie Ysselsteynseweg 40.

Overige gronden

Behalve de hierboven getoonde gronden maken ook enkele agrarische gronden rondom de locatie aan dedeellocatie Ringweg ongenummerd onderdeel uit van het plangebied. Dit betreft agrarische gronden in een straal van 50 m rondom de deellocatie 1.Ringweg ongenummerd. Deze gronden zijn enkel meegenomen ten behoeve van afspraken met betrekking tot het gebruik van gewasbeschermingsmiddelen, waar in paragraaf 4.11 nader op ingegaan wordt. In paragraaf 7.4 is beschreven op welke wijze deze afspraken doorwerken op de regels en verbeelding.

2.2 Toekomstige situatie

Deellocatie Ringweg ongenummerd

Het plan betreft de realisatie van een nieuwe woning aan de oostrand van Ysselsteyn. De woning wordt voorzien van een garage, carport, bijgebouw en overdekt terras. Ontsluiting vindt plaats via een oprit aan de noordwestzijde, met op eigen terrein ruimte voor parkeren en infiltratie van hemelwater via een greppel. Ten aanzien van de ontwikkeling is een landschappelijk inpassingsplan opgesteld (zie bijlage 1 bij de regels). Door de situering en de opzet van de woning blijft het ruimtelijk karakter van de dorpsrand behouden.

De locatie wordt aan de noord- en oostzijde ingepast met een geschoren haag met bomen, aan de zuidkant het te behouden boombestand met aanplant brede meersoortige haag, en aan de westkant een solitaire boom en lage haag. De boom en de haag sluiten aan bij de 'dorpse beplanting' op de erven aan de westkant van de Ringweg en de typologie en samenstelling van de meersoortige haag verwijst naar de ligging aan de rand van het dorp en de betekenis als de begrenzing van tuinen. Navolgend wordt met een artist 's impression indicatief de beoogde vormgeving van de woning weergegeven:

afbeelding "i_NL.IMRO.0984.TAM25012-on01_0005.png"

Artist impression beoogde woning en erfinrichting Ringweg ongenummerd (indicatief, bron: Bekhuis & Kleinjan, maatwerk in architectuur)

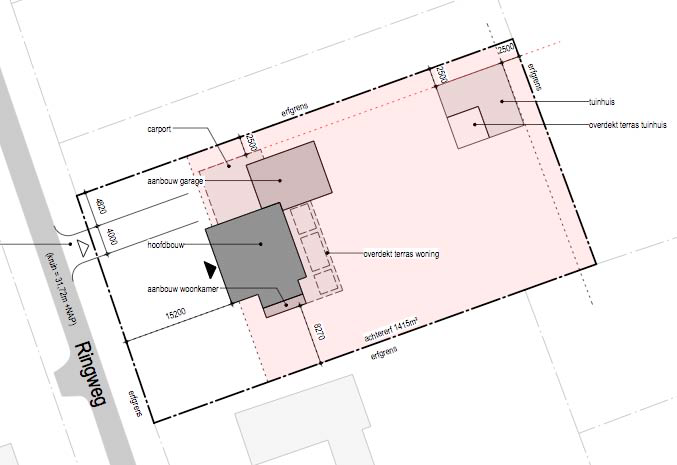
Navolgende afbeelding geeft de toekomstige inrichting van de deellocatie Ringweg ongenummerd weer.

afbeelding "i_NL.IMRO.0984.TAM25012-on01_0006.png"

Inrichtingstekening deellocatie Ringweg ongenummerd (indicatief, bron: Bekhuis & Kleinjan, maatwerk in architectuur)

Volgens het moederplan 'Buitengebied Venray 2010, herziening regels' mag de woning incl. aan-/bijgebouwen een inhoud van 875m³ hebben, bedraagt de afstand van gebouwen tot de niet naar de weg gekeerde bouwperceelsgrens minimaal 5m, en dienen bijgebouwen binnen een afstand van 15m van de woning te worden gebouwd.

Met dit plan wordt daarvan afgeweken. De beoogde woning incl. aan-/bijgebouwen krijgt een inhoudsmaat van 1736m³. De afstand van bijgebouwen tot de niet naar de weg gekeerde bouwperceelsgrens bedraagt 2,5m. Daarnaast wordt een bijgebouw op een grotere afstand dan 15m van de woning gebouwd. In het moederplan zijn afwijkingsregels, met voorwaarden, opgenomen om deze afwijkende maten mogelijk te maken. Onderstaand wordt getoetst aan die afwijkingsregels en de bijbehorende voorwaarden.

18.4 Afwijken van de bouwregels

Bij een omgevingsvergunning kan worden afgeweken van het bepaalde in:

  • a. artikel 18.2 onder a en een grotere inhoudsmaat toestaan voor woning inclusief bijgebouwen indien bestaande (bij)gebouwen worden gesloopt, onder de volgende voorwaarden:
    • 1. gesloopt wordt binnen het voor het buitengebied geldende omgevingsplan van de gemeente Venray;
    • 2. er is sprake van een goede milieuhygiënische uitvoerbaarheid;
    • 3. alleen de te slopen gebouwen die op die locatie niet vallen binnen het daar, op grond van de bouwregels, toegestane maximale bebouwingsvolume, worden in de berekening meegenomen;
    • 4. de te slopen gebouwen dienen legaal aanwezig te zijn op het moment van inwerkingtreding van het betreffende plan, zoals bedoeld in dit lid onder a sub 1, en mogen niet onder een andere regeling of verzoek vallen;
    • 5. aan de omgevingsvergunning voor het bouwen wordt de voorwaarde verbonden dat pas met de bouw gestart mag worden als sloop heeft plaatsgevonden;
    • 6. alle te slopen gebouwen en de daarbij behorende bouwwerken en bouwdelen, zoals aanbouwen, overkappingen, bijbehorende ondergrondse (kelder-)ruimten, fysieke erfafscheidingen, voederplaten en andere erfverhardingen dienen gesloopt te worden;
    • 7. alleen bovengrondse gebouwen worden meegerekend bij het te bepalen sloopvolume;
    • 8. het percentage van het te bouwen volume dat moet worden gesloopt is bepaald in de onderstaande tabel.
Aantal m³ dat wordt gebouwd (bebouwingsvolume)   Minimaal te slopen % (sloopvolume)  
Tot en met 250 m³   100%  
Het meerdere boven de 250 m³   150%  

Ad.

  • 1. de slooplocatie betreft Puttenweg 128 in Ysselsteyn en maakt onderdeel uit van het buitengebied van de gemeente Venray als opgenomen in het omgevingsplan;
  • 2. in hoofdstuk 4 wordt het plan getoetst aan de relevante wet- en regelgeving. Hieruit volgt dat er vanuit milieuhygiënisch oogpunt geen belemmeringen zijn voor het plan;
  • 3. hiermee is rekening gehouden in onderstaande berekening. Het sloopvolume van Puttenweg 128 is vastgelegd in de omgevingsvergunningen HZ-OMV-2021-0420 én HZ-INT-2020-0019;
  • 4. de in onderstaande berekening opgenomen sloopmeters zijn legaal aanwezig;
  • 5. een voorwaarde hiervoor is opgenomen in de regels bij het plan;
  • 6. hiermee wordt bij de sloop rekening gehouden;
  • 7. hiermee is rekening gehouden;
  • 8. hiermee is rekening gehouden in onderstaande berekening.

  Inhoud:     Oppervlakte:    
Woonhuis inclusief aan- en bijgebouwen:  
Woonhuis   887   m3   126   m2  
Aanbouw woonkamer   25   m3   8   m2  
Aanbouw garage   222   m3   69   m2  
         
Bijbehorende bouwwerken:  
Tuinhuis   209   m3   65   m2  
         
Bouwwerken, geen gebouw zijnde (overkappingen)  
Carport   155   m3   51   m2  
Overdekt terras woning   168   m3   55   m2  
Overdekt terras tuinhuis   70   m3   20   m2  
         
Totaal:   1736   m3   394   m2  

Tabel met berekening inhoud woning incl. aan-/bijgebouwen op deellocatie Ringweg ongenummerd

Volgens de regels van het omgevingsplan is 875m3 rechtstreeks toegestaan. De overschrijding bedraagt 1736m3 – 875m3 = 861m3 .

Bebouwingsvolume:   Factor:   Sloopvolume:  
250m3   100%   250m3  
611m3   150%   916,5m3  
861m3   Totaal   1166,5m3  

Tabel met berekening minimaal benodigde sloopvolume

18.4 Afwijken van de bouwregels

Bij een omgevingsvergunning kan worden afgeweken van het bepaalde in:

  • b. artikel 18.2 onder e van de planregels en toestaan dat bijgebouwen op een grotere afstand dan 15 m van de woning worden gebouwd, onder de voorwaarde dat de landschappelijke en agrarische waarden ter plaatse niet worden aangetast;

Ad.

Met onderhavig initiatief wordt een bijgebouw mogelijk gemaakt op een grotere afstand dan 15 m van de woning. Dit bijgebouw wordt landschappelijk ingepast, waarmee aantasting van landschappelijke waarden niet aan de orde is. Ook de agrarische waarden worden, gelet op de aard en omvang van het bijgebouw, niet geschaad. Hiermee wordt voldaan aan de voorwaarden van lid b.

18.4 Afwijken van de bouwregels

Bij een omgevingsvergunning kan worden afgeweken van het bepaalde in:

g. artikel 18.2 onder a en b van de planregels en het bouwen binnen de minimale afstand van gebouwen tot de bouwperceelsgrens toestaan, onder de voorwaarden dat:

  • 1. de ontwikkeling moet zijn gericht op gepaard gaan met verbetering van de omgevingskwaliteit. Hiertoe moet een landschappelijk inpassingsplan worden overgelegd waaruit blijkt dat de nieuwe bebouwing wordt ingepast;
  • 2. met het oog op de hemelwaterproblematiek dienen voorzieningen te worden getroffen voor de afkoppeling van hemelwater;
  • 3. de natuurlijke, cultuurhistorische, visueel-landschappelijke, abiotische en archeologische waarden niet onevenredig mogen worden aangetast;
  • 4. sprake is van een goede milieuhygiënische uitvoerbaarheid;
  • 5. aangetoond wordt dat de plaatsing vanuit het oogpunt van (brand)veiligheid aanvaardbaar is;
  • 6. het woon- en leefmilieu van de omgeving wordt niet onevenredig aangetast; dit betekent in ieder geval dat de gebruiksmogelijkheden van de aangrenzende percelen niet onevenredig worden beperkt;
  • 7. er mag geen onevenredige aantasting plaatsvinden van de waterhuishoudkundige situatie.

Ad.

Hetzelfde bijgebouw bevindt zich op een kortere afstand dan 5 m tot de niet naar de weg gekeerde bouwperceelsgrens. Navolgend wordt getoetst of hiervan afgeweken mag worden:

  • 1. gelet op de landschappelijke inpassing is er sprake van een verbetering van omgevingskwaliteit;
  • 2. met het plan worden voldoende voorzieningen getroffen ten behoeve van hemelwater, zie paragraaf 4.1;
  • 3. met het plan worden de benoemde waarden, zoals nader toegelicht in hoofdstuk 5, niet geschaad;
  • 4. in hoofdstuk 4 is toegelicht dat er vanuit milieuhygiënisch oogpunt geen belemmeringen aanwezig zijn;
  • 5. het bijgebouw bevindt zich op ruime afstand van verblijfslocaties, waarmee de positionering in het kader van veiligheid aanvaardbaar is;
  • 6. het bijgebouw heeft geen negatieve effecten op het woon- en leefmilieu van de omgeving;
  • 7. het plan voorziet in passende voorzieningen op het gebied van waterhuishouding, waarmee geen sprake is van aantasting. Dit is toegelicht in paragraaf 4.1.

Gelet op het voorgaande kan het bijgebouw op de beoogde locatie worden gepositioneerd.

Deellocatie Ysselsteynseweg 40

Op de deellocatie Ysselsteynseweg 40 vindt enkel een planologische wijziging plaats, er is geen sprake van een bouwactiviteit. De planologische wijziging heeft betrekking op het aldaar aanwezige bouw- en gebruiksrecht voor een bedrijfswoning en het bouwrecht voor een intensieve veehouderij. Dit heeft geen ruimtelijke wijzigingen tot gevolg.

Deellocatie Ringweg ongenummerd

Ook ter plaatse van de gronden rondom de deellocatie Ringweg ongenummerd vinden enkel planologische wijzigingen plaats. Dit heeft betrekking tot afspraken over het gebruik van gewasbeschermingsmiddelen. Dit levert geen ruimtelijke wijzigingen op ten opzichte van de feitelijke situatie.

Gelet op het voorgaande kan het bijgebouw op de beoogde locatie worden gepositioneerd.

Hoofdstuk 3 Beleid en regelgeving

In dit hoofdstuk wordt het initiatief getoetst aan beleid en regelgeving. Er wordt ingegaan op geldend beleid en regelgeving op Rijks-, provinciaal-, regionaal en gemeentelijk niveau. Vervolgens wordt het beoogde initiatief daaraan getoetst.

3.1 Rijksbeleid en rijksregels

3.1.1 Nationale Omgevingsvisie (NOVI)

Per februari 2021 is de Nationale Omgevingsvisie (NOVI) van kracht. De NOVI biedt een langetermijnperspectief op de ontwikkeling van de leefomgeving in Nederland tot 2050. Met de NOVI geeft het kabinet richting aan de grote opgaven die het aanzien van Nederland de komende dertig jaar ingrijpend zullen veranderen. Denk aan het bouwen van nieuwe woningen, ruimte voor opwekking van duurzame energie, aanpassing aan een veranderend klimaat, ontwikkeling van een circulaire economie en omschakeling naar kringlooplandbouw. Alles met zorg voor een gezonde bodem, schoon water, behoud van biodiversiteit en een aantrekkelijke leefomgeving.

Met de NOVI benoemt het Rijk nationale belangen, geeft het richting op de vier prioriteiten en helpt keuzes maken waar dat moet. Want niet alles kan overal. Deze visie is ontwikkeld in nauwe samenwerking met provincies, gemeenten, waterschappen, maatschappelijke instellingen en burgers.

Gebiedsgericht

De NOVI benoemt een aantal aspecten van nationaal ruimtelijk belang. Het betreft de bescherming van de waterveiligheid aan de kust en rond de grote rivieren, bescherming en behoud van de Waddenzee en enkele werelderfgoederen, de uitoefening van defensietaken, het Natuurnetwerk Nederland (voorheen de ecologische hoofdstructuur), de elektriciteitsvoorziening, de toekomstige uitbreiding van het hoofd(spoor)wegennet en de veiligheid rond rijksvaarwegen.

3.1.2 Besluit kwaliteit leefomgeving (Bkl)

In het Besluit kwaliteit leefomgeving (Bkl) staan regels over omgevingswaarden, instructieregels, beoordelingsregels en regels voor monitoring. Het Bkl geldt voor het Rijk en decentrale overheden en heeft geen directe uitwerking op de fysieke leefomgeving. Bij een evenwichtige toedeling van functies aan locaties moeten de verschillende instructieregels en geformuleerde omgevingswaarden in acht genomen worden.

Het gaat hierbij over de instructieregels met het oog op:

  • 1. Een evenwichtige toedeling van functies aan locaties;
  • 2. Het behoud van werelderfgoed en cultureel erfgoed;
  • 3. Natuurbescherming.

Daarnaast gaat het om de volgende omgevingswaarden

  • 4. Veiligheid primaire waterkeringen;
  • 5. Veiligheid andere dan primaire waterkeringen in beheer bij het Rijk;
  • 6. Kwaliteit van de buitenlucht;
  • 7. Waterkwaliteit;
  • 8. Kwaliteit van de zwemlocatie.

Artikel 5.129g van het Bkl bepaalt dat de Ladder betrekking heeft op een stedelijke ontwikkeling die voldoende substantieel is. De aard en omvang van het woningbouwplan in relatie met de omgeving bepaalt of het plan voldoende substantieel is.

Artikel 5.129g Bkl geeft geen ondergrens aan. In uitspraken van de Afdeling bestuursrechtspraak van de Raad van State zijn hiervoor lijnen uitgezet. Bij woningbouw is vanaf 12 woningen sprake van een stedelijke ontwikkeling die Ladderplichtig is. De Laddertoets moet alleen worden uitgevoerd wanneer de stedelijke ontwikkeling 'nieuw' is.

3.1.3 Landelijke beëindigingsregeling veehouderijlocaties (Lbv-regeling)

Op 12 juni 2023 zijn de definitieve regelingen 'Landelijke beëindigingsregeling veehouderijlocaties (Lbv)' en 'Landelijke beëindigingsregeling veehouderijlocaties met piekbelasting (Lbv-plus)' gepubliceerd. Beide regelingen zijn een subsidieregeling voor veehouders die willen stoppen met hun bedrijf of een locatie van hun bedrijf. Beide regelingen hebben als doel om de stikstof-uitstoot door de veehouderijen op Natura 2000-gebieden structureel te verlagen.

Het belangrijkste verschil tussen de Landelijke beëindigingsregeling veehouderijlocaties (Lbv) en de Lbv-plus is de doelgroep en de vergoeding. De Lbv-plus is specifiek voor piekbelasters, die met de hogere vergoeding een stimulans krijgen om te stoppen, inclusief vergoeding voor sloopkosten. De Lbv is een bredere regeling voor het beëindigen van veehouderijen, maar biedt een lagere vergoeding en geen vergoeding voor sloopkosten.

3.1.4 Toetsing van het initiatief aan het rijksbeleid

Het plangebied ligt niet in één van de aangewezen beschermde gebieden uit de NOVI of het Bkl. Het initiatief heeft daarmee op voorhand geen effect op één of meerdere aspecten met een nationaal ruimtelijk belang.

Voor de Laddertoets wordt verwezen naar paragraaf 5.1 waar onderbouwd wordt of er sprake is van zorgvuldig ruimtegebruik.

De toetsing aan de eventueel van toepassing zijnde omgevingswaarden vindt plaats in hoofdstuk 4.

3.2 Provinciaal beleid en provinciale regels

3.2.1 Provinciale omgevingsvisie

Omgevingsvisie Limburg

Op 1 oktober 2021 is de Provinciale Omgevingsvisie Limburg vastgesteld. In de omgevingsvisie Limburg is de lange termijn visie van de provincie Limburg beschreven. In de visie staat beschreven hoe de provincie richting wil geven aan toekomstbestendige ontwikkeling en hoe daarbij steeds de balans wordt gezocht tussen het beschermen en benutten van de fysieke leefomgeving. De provincie geeft met deze visie een doorkijk voor de periode 2021 tot 2030 - 2050.

De omgevingsvisie Limburg vervangt het in 2014 vastgestelde Provinciaal Omgevingsplan Limburg (POL2014) en is in een interactief proces met overheden, semi - overheden, belangenvertegenwoordigers, andere partnerorganisaties en inwoners opgesteld. De visie bouwt deels voort op eerder gemaakte beleidskeuzes. Op andere onderdelen zijn nieuwe keuzes gemaakt.

In de omgevingsvisie staan drie hoofdopgaven centraal:

  • Een aantrekkelijke, sociale, gezonde en veilige leefomgeving;
    • 1. in stedelijk c.q. bebouwd gebied
    • 2. in landelijk gebied
  • Een toekomstbestendige, innovatieve en duurzame economie; inclusief landbouw transitie;
  • Klimaatadaptatie en energie transitie.

Deze opgaven spelen Limburg-breed, maar de accenten verschillen per gebied en per sector. Per sector is in de omgevingsvisie aangegeven wat de opgave is voor de sector, welke ambitie de provincie heeft met deze sector en welke keuzes worden gemaakt per sector.

Ontwerp Provinciale Omgevingsvisie Limburg 2026

Van 26 mei tot en met 7 juli 2025 lag het Ontwerp Provinciale Omgevingsvisie Limburg 2026 ter inzage. Het document vormt de actualisatie van de POVI 2021, aangepast aan de eisen en structuur van de Omgevingswet en geïntegreerd in het Digitaal Stelsel Omgevingswet (DSO). Waar de POVI vooral beleidsmatig was, koppelt de het nieuwe beleid de doelen direct aan juridisch bindende regels in de omgevingsverordening.

3.2.2 Omgevingsverordening Limburg

De Omgevingsverordening Limburg is (op 3 februari 2025) in werking getreden bij de inwerkingtreding van de Omgevingswet en vervangt daarmee de Omgevingsverordening Limburg 2014. De inzet van de verordening als juridisch instrument om de doorwerking van het provinciaal beleid af te dwingen is beperkt tot die onderdelen van het beleid waarvoor de inzet van algemene regels noodzakelijk is om provinciale belangen veilig te stellen of om uitvoering te geven aan wettelijke verplichtingen.

3.2.3 Toetsing van het initiatief aan het provinciale beleid

Op grond van de provinciale verordening ligt onderhavig plangebied in 'buitengebied'. Daarmee is artikel 12.1 uit de verordening van toepassing. In het kader daarvan dient rekening gehouden te worden met hoofdstuk 3 en 5 uit de Omgevingsvisie. De provincie Limburg staat woningbouw op basis van de Omgevingsvisie in beginsel enkel toe binnen bestaand stedelijk gebied. Hierop zijn uitzonderingen mogelijk, waar het bijvoorbeeld gaat om een lokale en kleinschalige woonbehoefte. Het toevoegen van één woning aan de rand van de kern past binnen deze gedachte. Mede ook doordat het aantal mogelijke woningen in het buitengebied niet toeneemt door het wegbestemmen van de bedrijfswoning op de deellocatie Ysselsteynseweg 40.

Voor de regio Noord-Limburg geldt dat een ruimtelijk plan niet voorziet in de toevoeging van woningen aan de bestaande voorraad woningen, alsmede aan de bestaande planvoorraad woningen, anders dan op de wijze zoals beschreven in het door de gemeenteraden vastgestelde regionale woonbeleid. In paragraaf 3.3.2 is toegelicht dat het plan hierbinnen passend is. De behoefte voor de woning is hierbinnen voldoende uitgewerkt. Daarnaast dient te worden beschreven (sub e) hoe en wanneer de mogelijkheid tot realisatie van de woning komt te vervallen als de woning niet binnen 5 jaar na vaststelling is gerealiseerd. De gemeente Venray heeft de werkwijze dat dit in de anterieure overeenkomst wordt geborgd.

De activiteit past binnen het beleid en regels van de provincie Limburg. In paragraaf 8.3 is de vooroverlegreactie van de Provincie Limburg verwerkt.

3.3 Regionaal beleid

3.3.1 Regionale Woonvisie Noord-Limburg 2020-2024

Opgenomen in de verordening is dat onderhavig plangebied gelegen is in de regio Noord-Limburg. Voor deze regio geldt dat een ruimtelijke plan niet voorziet in de toevoeging van woningen aan de bestaande voorraad woningen, alsmede aan de bestaande planvoorraad woningen anders dan op de wijze zoals beschreven in de door de gemeenteraden vastgestelde Regionale Structuurvisie Wonen Noord-Limburg.

De Regionale Woonvisie Noord-Limburg 2020-2024 geeft richting aan het woonbeleid van de regio voor de komende vier jaar. Uitgangspunt daarbij is dat de huidige samenwerking en afstemming tussen verschillende partijen, waaronder corporaties, ontwikkelaars, zorginstellingen etc., wordt voortgezet. Op basis van een analyse over de huishoudensontwikkeling, de link tussen de (toekomstige) bevolkingssamenstelling en de bestaande woningvoorraad en enkele trends en ontwikkelingen zijn er in de visie enkele opgaven geformuleerd die als volgt zijn samen te vatten:

  • Mismatch woningbehoefte en woningvoorraad - Zowel met betrekking tot de bestaande- en nieuwe woningvoorraad. De nieuwbouw die wordt toegevoegd dient toegespitst te worden op de toekomstige woningbehoefte. Hierbij wordt er nog meer dan voorheen gekeken naar de kwalitatieve vraag en het bevorderen van de doorstroming op de regionale woningmarkt.
  • Zoektocht om alle doelgroepen een plek te geven binnen onze woningmarkt - De druk op de sociale huursector neemt toe. Niet alleen in aantallen, ook door een concentratie van mensen die door allerlei oorzaken hun weg maar moeilijk kunnen vinden in onze maatschappij. Dit brengt de druk op de leefbaarheid met zich mee.
3.3.2 Toetsing van het initiatief aan het regionale beleid

Een reguliere burgerwoning is voor meer doelgroepen toegankelijk dan een bedrijfswoning. Tevens leidt het realiseren van nieuwbouw tot een verduurzaming van het woonaanbod. Het initiatief is daarmee passend binnen het regionale beleid.

3.4 Waterschapsbeleid

3.4.1 Algemeen

Het plangebied is gelegen in het beheersgebied van het Waterschap Limburg. Het waterschap hanteert het volgende beleid:

Waterbeheerprogramma Waterschap Limburg

Op 8 december 2021 heeft het algemeen bestuur het Waterbeheerprogramma 2022-2027 vastgesteld. Hierin zijn de Limburgse wateropgaven voor de toekomst bepaald. In het programma staat onder meer beschreven hoe het waterschap zorgt voor veilige dijken, droge voeten en voldoende en schoon water. Het programma sluit aan bij het landelijk beleid en het provinciaal waterbeleid. Hoe invulling gegeven wordt aan het programma is vastgelegd in het Bestuursakkoord.

Waterschapsverordening

In de Waterschapsverordening staan regels over wat wel en niet mag in en nabij water, dijken en stuwen. De werkingsgebieden bij de Waterschapsverordening laten de zones zien waarop de regels uit Waterschapsverordening van toepassing zijn.

3.4.2 Toetsing van het initiatief aan het waterschapsbeleid

Voor het Waterschap Limburg is het niet mogelijk via hetwateradvies.nl een digitale watertoets uit te voeren. Het initiatief wordt daarom direct aan het waterschap voorgelegd. In paragraaf 4.1 is bij de weging van het waterbelang het beleid van het waterschap in acht genomen. Daarmee wordt geconcludeerd dat het initiatief passend is binnen het waterschapsbeleid. In paragraaf 8.3 is de vooroverlegreactie van het Waterschap Limburg verwerkt.

3.5 Gemeentelijk beleid

3.5.1 Toekomstvisie Venray 2030 'Venray loopt voorop'

Op 27 juni 2019 is de Toekomstvisie Venray 2030 'Venray loopt voorop' vastgesteld. In deze visie heeft de gemeente Venray haar ambities opgesteld voor de ontwikkeling van de gemeente tot 2030. Deze visie vervangt de Strategische visie 2020 en de nota 'Venray, stad in de Peel (2025)'. De toekomstvisie geeft de gemeente een koers voor het omgaan met nieuwe trends en ontwikkelingen in de gemeente, zowel binnen de gemeenschap van Venray als in de regio. Belangrijke thema's uit de vorige strategische visie worden doorgezet in deze visie. 'Venray loopt voorop' heeft aandacht voor burgerparticipatie, de rol van de overheid, en regionale samenwerking, met name op het gebied van onderwijs, bedrijfsleven en in de naaste omgeving van inwoners. Hiermee speelt de toekomstvisie in op de nieuwe Omgevingswet. Daarnaast is er veel aandacht voor de kwalitatieve ontwikkeling van onder meer de leefomgeving. De uitdaging daarbij is om de ruimtelijke kwaliteit zowel in de stad, op het platteland als in de natuur op een hoog niveau te houden.

De gemeente Venray heeft voor de komende tien jaar de volgende vijf ambities geformuleerd.

In het Venray van 2030:

  • zijn inwoners, hun netwerken, culturen en voorzieningen met elkaar verbonden;
  • woon je groen en sociaal;
  • zorgt ondernemerschap met aandacht voor mens, dier en milieu, voor nieuwe economische kansen;
  • stroomt kennis, creativiteit en vernieuwing;
  • is iedereen mobiel.

Planspecifiek

Met het plan is een woning op een groene locatie aan de rand van de kern Ysselsteyn voorzien. Het plan sluit daarmee aan op de gemeentelijke ambitie 'groen en sociaal' te wonen.

Geconcludeerd wordt dat het initiatief past binnen de Toekomstvisie Venray 2030 'Venray loopt voorop'.

3.5.2 Omgevingsvisie Venray

Op 2 november 2021 heeft de gemeente Venray de 'Omgevingsvisie Venray' vastgesteld. In de Omgevingsvisie gaat de gemeente in op de grote uitdagingen van de aankomende tijd en geeft de gemeente aan waar het naar toe wil in de toekomst. In december 2023 is de Omgevingsvisie geactualiseerd. De Omgevingsvisie vormt de ruimtelijke vertaling van de strategische visie: Toekomstvisie 2030 'Venray loopt voorop'. De Omgevingsvisie is tot stand gekomen in samenwerking met inwoners, ondernemers en verenigingen uit de gemeente Venray. De volgende vijf ambities zijn geformuleerd:

  • 1. Groen wonen voor iedereen.
  • 2. Een gezond Venray heeft de toekomst.
  • 3. Venray bloeit, bruist en boeit.
  • 4. Natuurlijk Venray!
  • 5. Ambities in regionaal perspectief.

Verder geeft de gemeente aan dat het de belangrijkste waarden (Erfgoed, Landschap, Natuur en Groen, Water en bodem en Stedenbouwkundig kader) wil beschermen en versterken. Daarbij wordt er rekening gehouden met klimaatverandering, de energietransitie en de woningbouw om het woningtekort op te lossen.

Planspecifiek

Middels het landschappelijk inpassingsplan voorziet het initiatief in groene elementen rondom de toekomstige woning. Daarnaast verschuift het bouwrecht van een bedrijfswoning naar een burgerwoning, waarmee een woning voor meer doelgroepen beschikbaar komt. Daarmee past het initiatief binnen de ambities voor 'Groen wonen voor iedereen'.

Het initiatief is passend binnen de Omgevingsvisie.

3.5.3 Structuurvisie bijdrage Ruimtelijke Ontwikkeling 2011 - Borging Kwaliteitsmenu

Op 20 december 2011 heeft de gemeente Venray de 'Structuurvisie bijdrage Ruimtelijke Ontwikkeling 2011' vastgesteld. Uitgangspunt van deze visie is dat ruimtelijke ontwikkelingen kunnen worden aangegrepen om de ruimtelijke kwaliteit van een gebied te verbeteren. Het doel daarbij is om bestaande (groene) kwaliteiten te behouden en waar mogelijk te verbeteren, zowel in het buitengebied als in het stedelijk gebied.

Limburgs Kwaliteitsmenu

Onderdeel van onderhavige structuurvisie is ook de implementatie van het Limburgse Kwaliteitsmenu. Het Limburgs kwaliteitsmenu (verder te noemen LKM) is door Gedeputeerde Staten op 12 januari 2010 vastgesteld. Vanaf 1 januari 2012 zijn Limburgse gemeenten zelf verantwoordelijk voor de advisering over plannen binnen de werkingssfeer van het LKM. Grondprincipe van dit kwaliteitsmenu is, dat bepaalde ontwikkelingen in het buitengebied ter plaatse leiden tot verlies aan omgevingskwaliteit, hetgeen dient te worden gecompenseerd door een kwaliteitsbijdrage. Deze bijdrage wordt ingezet om de omgevingskwaliteit te versterken.

Planspecifiek

De locatie ligt volgens de Omgevingsverordening van de Provincie Limburg in 'Buitengebied'. Voor de realisatie van dit plan is het daardoor nodig dat een bouwtitel wordt ingezet. Deze bouwtitel is afkomstig van de deel locatie Ysselsteynseweg 40. Op deze locatie is geen bedrijfswoning aanwezig, maar wel ligt er een bouw- en gebruiksrecht voor één bedrijfswoning. Met voorliggend plan wordt deze bedrijfswoning wegbestemd. Dit levert een bouwtitel op. Deze bouwtitel is toegekend in het conceptverzoek nummer Z2025-00000917.

3.5.4 Omgevingsprogramma Wonen

In het Omgevingsprogramma Wonen 'Verder bouwen aan de toekomst van Venray' staat hoe Venray zich wil blijven ontwikkelen als een fijne gemeente om te wonen. Het Omgevingsprogramma vervangt de 'Woonvisie Venray 2017'. Op hoofdlijnen geeft de gemeente richting aan de verschillende belangrijke vraagstukken rondom het wonen. De gemeente richt zich op vijf thema's:

  • 1. Snel voldoende woningen bouwen;
  • 2. Een gevarieerd aanbod;
  • 3. Duurzame woningvoorraad;
  • 4. Wonen, gezondheid en zorg;
  • 5. Vitale wijken en dorpen.

In het Omgevingsprogramma wordt beschreven dat vooral ook passende woningen voor senioren en starters nodig zijn. Daarnaast is een passend aanbod van betaalbare huur- en koopwoningen voor lage en middeninkomens nodig.

Planspecifiek

Onderhavig initiatief voorziet in de mogelijkheden tot het realiseren van een woning aan de rand van Ysselsteyn. Dit sluit aan bij de ambitie om snel voldoende woningen te bouwen. De nieuwbouw zorgt voor een verduurzaming van de woningvoorraad. Hiermee is het initiatief passend binnen het Omgevingsprogramma Wonen.

3.5.5 Doelgroepenverordening Wonen Venray 2022

In februari 2022 heeft de gemeenteraad van Venray het Omgevingsprogramma Wonen en de Uitvoeringsagenda Wonen 2022 vastgesteld. In het Omgevingsprogramma is een aantal juridische instrumenten benoemd die kunnen bijdragen aan het realiseren van de doelstellingen van het Omgevingsprogramma. De Doelgroepenverordening Wonen Venray 2022 (vastgesteld op 13 december 2022) is een van die instrumenten.

In het Omgevingsprogramma Wonen is vastgelegd dat van de 1.500 woningen die de komende 10 jaar gerealiseerd worden voor minimaal 50% in het betaalbare segment gerealiseerd worden. Met de doelgroepenverordening kanwordt via een verdeelsleutel publiekrechtelijk worden geregeld dat er voldoende woningen in het sociale en betaalbare segment worden gerealiseerd inbij nieuwe woningbouwontwikkelingen. Tevens wordt geregeld dat deze woningen ook langjarig beschikbaar blijven voor de betreffende doelgroepen.

Met de doelgroepenverordening neemt de gemeente meer regie op de bouw en het beschikbaar houden van woningen in het sociale en betaalbare segment. De doelgroepenverordening is alleen van toepassing bij nieuwbouw van 12 of meer woningen en regelt niet de toewijzing van woningen.

Planspecifiek

De verdeelsleutel uit de doelgroepenverordening is, gelet op de omvang van het initiatief (1 woning), niet van toepassing op het plan. Op grond van de verordening geldt een verplichting voor de instandhouding van woningen in het betaalbare segment. De beoogde woning valt in het dure segment, waarmee dit onderdeel niet van toepassing is. Het initiatief is daarmee niet in strijd met de uitgangspunten van de doelgroepenverordening.

De Doelgroepenverordening Wonen Venray 2022 staat het plan niet in de weg.

3.5.6 Toetssteen Openbare Ruimte

De Toetssteen Openbare Ruimte, heeft betrekking op de (toekomstige) openbare ruimte, geen gebouw zijnde, welke beheerd wordt door de beheerders van de afdeling Openbare Ruimte van de gemeente Venray. De

Toetssteen Openbare Ruimte heeft als doel het waarborgen van de kwaliteit van de openbare ruimte van de gemeente Venray. Het begrip kwaliteit kan worden opgedeeld in:

  • 1. Technisch-functionele kwaliteit;
  • 2. Sociaal-maatschappelijke kwaliteit.

De Toetssteen beschrijft de uitgangspunten, randvoorwaarden, ontwerpeisen etc. waaraan bouwplannen in de openbare ruimte minimaal dienen te voldoen. Verder verschaft de Toetssteen inzicht in de toetsingsprocedure van de gemeente.

Het meenemen van de uitgangspunten, randvoorwaarden en ontwerpeisen van al de betrokken vakdisciplines in een vroeg stadium zal resulteren in een meer integraal ontwerp. Met deze werkwijze kan op de lange termijn integraal ontworpen openbare ruimte kostenefficiënter worden beheerd en kan deze door keuzes als flexibiliteit en aanpasbaarheid blijven voorzien in de behoeften van de maatschappij. Ook zal het beoordelingstraject van een bouwplan efficiënter verlopen.

Het waarborgen dat wordt voldaan aan de verschillende kwaliteitseisen van de gemeente bestaat uit twee stappen, te weten:

1. Aanleveren Toetssteen.

2. Controle op toepassing Toetssteen in de plannen.

Planspecifiek

Voorliggend initiatief voorziet enkel in ontwikkelingen binnen privaat terrein, waardoor de Toetssteen Openbare Ruimte met betrekking tot dit plan alleen voor het onderdeel 'Verkeer' relevant is. In paragraaf 5.4 is gemotiveerd dat op de deellocatie Ringweg ongenummerd binnen eigen terrein voldoende parkeergelegenheid aanwezig is in lijn met de parkeernormen uit de 'Beleidsnota Parkeernormen Venray'. Daarmee is geborgd dat parkeren als gevolg van het toekomstig gebruik van het plangebied binnen eigen terrein dient plaats te vinden en de parkeerdruk op de openbare ruimte door dit initiatief niet toeneemt. De woning op de deellocatie Ringweg ongenummerd wordt ontsloten op de Ringweg. Hiermee is voldaan aan de Toetssteen Openbare Ruimte van de gemeente Venray.

3.5.7 Ruimtelijk KwaliteitsKader

In november 2021 is de Omgevingsvisie Venray vastgesteld. In de Omgevingsvisie staat bij de uitvoering en monitoring opgenomen dat een Ruimtelijk KwaliteitsKader voor het hele gemeentelijke grondgebied opgesteld wordt. In de Omgevingsvisie wordt ook een beschrijving van de waarden gegeven. Het betreft de waarden:

  • 1. Erfgoed,
  • 2. Landschap,
  • 3. Natuur en groen,
  • 4. Water en bodem en
  • 5. Stedenbouwkundig kader (alleen voor de kern Venray)

Deze waarden vormen gezamenlijk de basis voor de ruimtelijke kwaliteit van de gemeente. Naar aanleiding daarvan heeft de gemeente Venray een Ruimtelijk Kwaliteitskader vastgesteld. Dit is juridisch verankerd in het op 31 oktober 2023 vastgestelde bestemmingsplan 'Buitengebied Venray, Herziening regels Ruimtelijk Kwaliteitskader'. Door de ruimtelijke kwaliteit van Venray te beschermen en te versterken wordt aangesloten bij het motto van de Omgevingswet 'Ruimte voor ontwikkeling, waarborgen voor kwaliteit'. Het opgestelde Ruimtelijk KwaliteitsKader geldt zowel voor het landelijk als voor het stedelijk gebied. Hierin wordt de ruimtelijke kwaliteit vastgelegd in de vorm van kenmerken en streefbeelden. Bij nieuwe ontwikkelingen wordt getoetst aan het Ruimtelijk KwaliteitsKader waarin wordt vastgelegd welke kwaliteiten belangrijk zijn om te behouden en welke ontwikkelingen waar gewenst zijn. Het Ruimtelijk KwaliteitsKader vormt ook een inspiratiedocument voor initiatiefnemers en bevat aanbevelingen die helpen om een initiatief zo goed mogelijk in te passen rekening houdend met de omringende waarden.

Planspecifiek

Het plangebied bevindt zich binnen het deelgebied 'Jonge Ontginningsgebieden'. Dit gebied wordt gekenmerkt door een onregelmatige structuur. De verkaveling is kleinschalig en op sommige plekken grillig van vorm. Bij dit gebied horen de volgende kenmerken en waarden:

Kenmerken:

  • Lintbeplanting: langs bebouwingslinten en in het open landschap
  • Veel grasland
  • Planmatige, strakke en rationele verkaveling met sloten als grenzen
  • Rechtlijnige, brede en grote bouwkavels aan wegen
  • Planmatige bebouwingsstructuur volgt verkavelingsstructuur
  • Rationele opbouw in zonering bouwkavel: woning met daarachter bedrijfsgebouwen
  • Bedrijfsgebouwen bestaan uit grote bouwmassa's die compact op de kavel staan
  • Agrarische bedrijvigheid: intensieve veehouderij
  • Bouw- en graslanden

Waarden:

  • grootschalige openheid
  • rationele verkavelingsstructuur
  • laanbeplanting langs wegen
  • bossen vormen de achtergrond/grens van het landschap als contrast met de openheid
  • genormaliseerde beken en waterlopen

Het plan voor de bouw van een woning op de deellocatie Ringweg ongenummerd sluit aan bij het Ruimtelijk Kwaliteitskader doordat het is gesitueerd op een rechtlijnig, ruim bemeten perceel langs een bestaande weg, passend binnen de planmatige verkavelingsstructuur van het gebied. De woning met bijgebouw wordt compact gesitueerd binnen het bouwvlak en sluit aan bij de rationele opbouw van erven in de streek, waarbij bebouwing haaks of parallel aan de verkavelingsrichting staat. De landschappelijke inpassing voorziet in een erfbeplanting met hagen, bomenrijen en solitaire bomen die voortbouwen op het bestaande patroon van lint- en laanbeplanting langs wegen en erven, zonder afbreuk te doen aan de grootschalige openheid en de agrarische hoofdstructuur van het landschap.

Het initiatief is hiermee passend binnen het Ruimtelijk KwaliteitsKader.

3.5.8 Omgevingsplan

Huidige bouw- en gebruiksmogelijkheden

Het tijdelijk deel van het omgevingsplan bestaat uit de geldende bestemmingsplannen, de verordeningen tijdelijk deel omgevingsplan (archeologieverordening (artikel 38, Monumentenwet 1988), geurverordening (artikel 6, Wet geurhinder en veehouderij), verordening afvoer regen- en grondwater (artikel 10.32a, Wet milieubeheer), hogere waarde besluiten (artikel 110a, Wet geluidhinder), vastgestelde veiligheidscontouren (artikel 14, Besluit externe veiligheid inrichtingen) en de bruidsschat. Hierna wordt per aspect de ontwikkeling getoetst op strijdigheden. Om te bepalen of het initiatief past binnen het omgevingsplan, wordt getoetst aan het voorheen geldende bestemmingsplan dat één op één is overgenomen in het tijdelijk deel van het omgevingsplan, meer specifiek de in het omgevingsplan opgenomen bestemmingsplannen 'Buitengebied Venray 2010' (vastgesteld op 14 december 2010, en de daaropvolgende herzieningen) en 'Ringweg 12 Ysselsteyn' (vastgesteld op 30 augustus 2011)

Deellocatie Ringweg ongenummerd

Op grond van de vigerende planologische situatie heeft de deellocatie Ringweg ongenummerd de bestemming 'Agrarisch'. Hierbinnen geldt een maatvoering ten aanzien van een maximum bouwhoogte van 65 m. Tevens is het plangebied gelegen in gebieden die zijn aangeduid als 'luchtvaartverkeerzone', 'agrarisch gemengd' en 'reconstructiewetzone - verwevingsgebied'. Navolgende afbeeldingen geven de situatie weer.

afbeelding "i_NL.IMRO.0984.TAM25012-on01_0007.png"

Planologische situatie deellocatie Ringweg ongenummerd volgens 'Buitengebied Venray 2010' (bron: regels op de kaart)

afbeelding "i_NL.IMRO.0984.TAM25012-on01_0008.png"

Planologische situatie deellocatie Ringweg ongenummerd volgens 'Ringweg 12 Ysselsteyn' (bron: regels op de kaart)

Deellocatie Ysselsteynseweg 40

Voor de deellocatie Ysselsteynseweg 40 geldt eveneens de bestemming 'Agrarisch'. De locatie maakt onderdeel uit van een bouwvlak met de functieaanduiding 'intensieve veehouderij'. Daarnaast geldt ter plaatse van de locatie de aanduiding 'bedrijfswoning'. Er geldt een maatvoering ten aanzien van de maximum bouwhoogte, die op 120 m is gelegd. Tevens is de locatie gelegen in gebieden die zijn aangeduid met 'luchtvaartverkeerzone' en 'reconstructiewetzone - verwevingsgebied'. Navolgende afbeelding geeft de situatie weer.

afbeelding "i_NL.IMRO.0984.TAM25012-on01_0009.png"

Planologische situatie deellocatie Ysselsteynseweg 40 volgens 'Buitengebied Venray 2010' (bron: regels op de kaart)

Strijdigheden initiatief in relatie tot omgevingsplan

Ter plaatse van de deellocatie Ringweg ongenummerd zijn geen mogelijkheden opgenomen voor het bouwen en gebruiken van een burgerwoning. Onderhavige ontwikkeling is daarmee strijdig met het omgevingsplan. Met onderhavig initiatief wordt dit bouw- en gebruiksrecht mogelijk gemaakt.

3.5.9 Wederzijds vertrouwen, Welstandsnota 2013 gemeente Venray, 2e herziening 2018

In de nota 'Wederzijds vertrouwen, Welstandsnota 2013 gemeente Venray, 2e herziening 2018' (welke onderdeel is van het Ruimtelijk KwaliteitsKader, zie 3.5.7) past de gemeente Venray een differentiatie in welstandstoezicht toe. Het welstandsbeleid wordt in de eerste plaats gedifferentieerd naar de specifieke situatie in wijken, buurten of gebieden en naar de plaats van een bouwwerk op het erf. Dit betekent dat minder beeldbepalende gebieden (waaronder grote delen van Venray, de kerkdorpen en bedrijventerreinen) preventief worden getoetst door een ambtenaar. Voor nieuwe hoofdgebouwen, monumenten en plannen die niet passend zijn binnen de vigerende planologische situatie wordt de toetsing uitgevoerd door de welstandscommissie (in Venray het Adviesbureau OmgevingsKwaliteit (AOK).

Planspecifiek

Voorliggend initiatief voorziet in het toevoegen van één woning binnen deellocatie Ringweg ongenummerd in het buitengebied van de gemeente Venray. Het AOK (Adviesbureau OmgevingsKwaliteit) zal het initiatief daarom niet toetsen aan de welstandsnota. Wel wordt het plan ambtelijk getoetst.

De nota 'Wederzijds vertrouwen, Welstandsnota 2013 gemeente Venray' staat het initiatief niet in de weg.

3.5.10 Venray Vergroent

De gemeente Venray heeft een belangrijke rol om problemen als klimaatverandering, luchtkwaliteit, hevige buien en afnemende biodiversiteit het hoofd te bieden. Venray Vergroent is een programma waarin de gemeente samen met inwoners op een slagvaardige, integrale en ambitieuze wijze werkt aan deze opgaven.

Venray Vergroent kent drie deelprojecten:

  • 1. Energietransitie;
  • 2. Klimaatadaptatie;
  • 3. Circulaire economie.

Energietransitie

De gemeente Venray wil energie gaan besparen door de totale energievraag drastisch te verminderen. Desondanks zal er ook in de toekomst energie nodig zijn. Deze energie zal duurzaam worden opgewekt. Particulieren kunnen dit doen door gebruik te maken van zonne-energie en nieuwe woningen niet meer aan te sluiten op het gasnetwerk maar anderszins te verwarmen. Bijvoorbeeld via warmtepompinstallaties.

Klimaatadaptatie

Er zijn vier gemeentelijke speerpunten rondom dit onderwerp: wateroverlast, hitte, droogte en biodiversiteit. Door overtollig hemelwater af te koppelen en op eigen terrein van particulieren te borgen wordt het riool ontlast. Huiseigenaren kunnen hun tuinen bewuster inrichten door stenen zoveel als mogelijk te verwijderen en extra groen aan te leggen. Groen biedt meer ruimte om hemelwater in de bodem te infiltreren en zorgt daarnaast voor een verkoelend effect tijdens warme dagen. Een variatie aan bomen en struiken (bloem-/besdragend) komt daarnaast ten goede aan het herstellen van de biodiversiteit.

Ook overstekken op de juiste plaats kunnen bijdragen bij aan minder zoninstraling in het gebouw bij hete zomers.

Natuurinclusief bouwen

Naast duurzaamheid en energie kan er aandacht worden besteed aan natuurinclusief bouwen. Hierbij kan gedacht worden aan ingebouwde nestkastjes of het realiseren van parkeergelegenheid met grasbeton tegels.

Op platte daken kan gebruik gemaakt worden van groen-/sedumdaken. Dit is naast wateropvang goed als isolerende maatregel bij extreme temperaturen. Ook in combinatie met zonnepanelen is dit een goede optie, hierdoor hebben zonnepanelen een hoger rendement.

Circulaire economie

De gemeente formuleert meerdere speerpunten rondom het onderwerp 'circulaire economie': bewustwording, inkopen, samenwerking, verdienmodellen en meten is weten. Er zijn daarnaast verschillende niveaus waarop bijgedragen kan worden aan de circulaire economie. Deze niveaus zijn inzichtelijk gemaakt in de 'Venrayse circulaire ladder'. Het hoogste niveau verdient de voorkeur. Daar worden de meeste grondstoffen bespaard en is dit daarmee de meest efficiënte interventie.

Er kan worden gekeken naar biobased bouwen en toepassing van circulaire (isolatie)materialen (zoals houtvezel, hennep etc. ). Het voordeel hiervan is dat deze materialen het leefklimaat bevorderen (natuurlijke materialen) en langdurig CO2 opslaan op deze wijze. Maar ook duurzame bouwmethoden kunnen gebruikt worden.

afbeelding "i_NL.IMRO.0984.TAM25012-on01_0010.png"

Venrayse circulaire ladder (bron: Uitvoeringsagenda Circulaire Economie Venray)

Planspecifiek

In deze paragraaf alsmede paragraaf 5.5 is uiteengezet op welke wijze het thema duurzaamheid is geïntegreerd in voorliggend plan.

De woning op de deellocatie Ringweg ongenummerd krijgt geen aansluiting op het gasnetwerk en voldoet aan de huidige eisen voor duurzaamheid en energie (BENG/ENG eisen). Voor de opwek van warmte en energie wordt voorzien in een warmtepomp respectievelijk zonnepanelen.

De burgerwoning op de deellocatie Ringweg ongenummerd, die met dit plan mogelijk wordt gemaakt, wordt landschappelijk ingepast. De inpassing met bomen en struiken zorgt voor een verkoelend effect en draagt bij aan het herstel van de biodiversiteit. De ontwikkeling wordt op een bestaand perceel aan de dorpsrand van Ysselsteyn gerealiseerd, waarmee zorgvuldig wordt omgegaan met de beschikbare ruimte. De woning wordt levensloopbestendig ontworpen. Bij de bouw van de woning wordt gekeken naar mogelijkheden voor biobased bouwen en/of circulaire materialen. Door de compacte opzet van het erf en de inrichting met overwegend groene elementen wordt een beperkte hoeveelheid verhard oppervlak toegevoegd. Het hemelwater van daken en verhardingen wordt lokaal opgevangen en afgevoerd naar een infiltratiegreppel, waardoor het regenwater niet verloren gaat maar ten goede komt aan de bodem en het omliggende groen. In het plangebied is geen bebouwing aanwezig, waardoor geen sprake is van bij sloop vrijkomende materialen die hergebruikt kunnen worden.

Voorliggend initiatief sluit aan op 'Venray Vergroent'.

3.5.11 Toetsing van het initiatief aan het gemeentelijk beleid

De activiteit past binnen de doelstellingen en het beleid van de gemeente. De ontwikkeling is echter in strijd met de regels van het omgevingsplan. Daarom wordt het omgevingsplan gewijzigd waarvoor onderhavige toelichting is opgesteld.

Hoofdstuk 4 Veilige en gezonde fysieke leefomgeving

In dit hoofdstuk wordt inzicht gegeven in de aspecten die samen bepalend zijn voor de vraag of met de voorgenomen ontwikkeling een veilige en gezonde fysieke leefomgeving ontstaat en behouden blijft voor nu en in de toekomst.

4.1 Weging van het waterbelang

Het wettelijk kader is gericht op het verkrijgen van inzicht in de gevolgen voor de waterhuishouding die samenhangen met de ruimtelijke ontwikkeling die mogelijk wordt gemaakt. Het wettelijk kader is afhankelijk van zowel gemeentelijk beleid als het beleid van het waterschap.

Artikel 5.37 van het Bkl stelt dat in een omgevingsplan rekening wordt gehouden met de gevolgen voor het beheer van watersystemen. Naast de specifieke regels als gesteld in paragraaf 5.1.3 Bkl over onderdelen van het watersysteem in het omgevingsplan, worden de opvattingen van het bestuursorgaan dat is belast met het beheer van die watersystemen betrokken voor een duiding van de gevolgen voor het beheer van het watersysteem.

De verantwoordelijkheden en bevoegdheden van de omgevingswaarden ten aanzien van water zijn als volgt onderverdeeld:

  • Rijk: omgevingswaarden voor (1) waterkwaliteit, (2) zwemwaterkwaliteit, (3) veiligheid van primaire waterkeringen en (4) de veiligheid van andere dan primaire waterkeringen, voor zover die in het beheer zijn bij het rijk (2.15 Ow);
  • Provincie: omgevingswaarden voor de veiligheid van (1) bij de omgevingsverordening aangewezen andere dan primaire waterkeringen die niet bij het rijk in beheer zijn en (2) de gemiddelde overstromingskans per jaar van bij de omgevingsverordening aangewezen gebieden met oog op de bergings- en afvoercapaciteit waarop (niet bij het rijk in beheer zijnde) regionale wateren moeten zijn berekend (2.13 Ow);
  • Gemeente: gemeenten kunnen ook zelf besluiten om omgevingswaarden vast te stellen. Indien hiervan sprake is dient ook aan deze omgevingswaarde getoetst te worden.

Het is aan het bevoegd gezag om te bepalen hoe andere bestuursorganen bij de besluitvorming worden betrokken bij de weging van het waterbelang. Zodoende is de eerdere, verplichte watertoets niet langer voorgeschreven en is de gemeente vrij om hier zelf invulling aan te geven. In elk geval worden de wateraspecten beschreven en wordt aangegeven welke waterhuishoudkundige maatregelen voor de ontwikkeling moeten worden getroffen. Over het initiatief wordt advies gevraagd aan de betrokken waterbeheerder.

Gemeentelijk rioleringsplan

In het Gemeentelijk Rioleringsplan (GRP) 2022-2025, vastgesteld op 14 december 2021, is het beleid voor het

beheer van de gemeentelijke riolering voor de periode 2022 tot en met 2025 vastgelegd. Het plan wordt door

de gemeente gebruikt om nu en in de toekomst aan de gemeentelijke zorgplichten te kunnen voldoen en als

toetsingskader voor nieuwe ontwikkelingen. Voor de indeling van het GRP is rekening gehouden met de

nieuwe Omgevingswet (Ow).

 

Het veranderende klimaat en de verstedelijking brengen grote uitdagingen met zich mee. Regenbuien worden

steeds extremer en komen vaker voor, met veel overlast en schade tot gevolg. Ook het vasthouden van het

gewenste grondwaterpeil wordt moeilijker tijdens extreem lange droge of natte perioden. Omdat het aantal

warme dagen toeneemt wordt hittestress ook een probleem, vooral in een gebouwde omgeving met weinig

groen en veel verharding.

Het besef groeit dat wateroverlast niet langer is op te lossen door alleen maar het aanpassen van de riolering.

Om extreme buien doelmatig te verwerken moet de gehele buitenruimte beter worden benut. Bijvoorbeeld via de aanleg van meer groene voorzieningen, bergingsbassins en oppervlaktewater. Maar ook het vergroenen van daken en tuinen en het opwaarderen van bestaande sloten.

 

Hemelwater dient zo lokaal mogelijk te worden verwerkt en kan worden benut voor het aantrekkelijk maken

van de leefomgeving. In het GRP geeft de gemeente aan dat inwoners hemelwater zoveel mogelijk op eigen

perceel dienen te infiltreren. Bij nieuwe ruimtelijke particuliere ontwikkelingen is het streven om hemelwater

bij voorkeur bovengronds te infiltreren in de bodem. De gemeente hanteert daarbij de volgende voorwaarden;

  • 1. de infiltratievoorziening dient minimaal een neerslaggebeurtenis van 60 mm te kunnen verwerken*;
  • 2. de infiltratievoorziening dient een leeglooptijd te hebben van 24 uur of minder;
  • 3. de aanwezigheid van een overloopvoorziening (indien mogelijk bovengronds) voor de afvoer van water bij hevige buien als de voorziening vol is, is zo ontworpen dat deze wateroverlast voorkomt.

* De norm van 60 mm geldt alleen als er geen verbinding is tussen de infiltratievoorziening en oppervlaktewater. Als de infiltratievoorziening loost op een oppervlaktewater gelden de normen van het Waterschap. Deze stelt dat de infiltratievoorziening minimaal 100 mm groot moet zijn. Pas daarna mag een eventueel overschot worden geloosd op het oppervlaktewater. Het waterschap adviseert overigens om altijd, dus ook als er geen verbinding is tussen infiltratievoorziening en oppervlaktewater, 100 mm aan te houden.

Planspecifiek

Het plangebied ligt binnen het beheergebied van Waterschap Limburg. Voor het Waterschap Limburg is het niet mogelijk een digitale watertoets uit te voeren. Het waterschap is daarom via het wettelijk vooroverleg op de hoogte worden gebracht van voorliggend initiatief. Hierbij is aangegeven dat er geen bezwaren tegen het plan. Met adviezen is in de verschillende paragrafen rekening gehouden. Voor beide locaties geldt dat ze niet in of nabij (beschermingszones van) oppervlaktewater, (beschermde) waterkeringen of waterwingebieden liggen.

Deellocatie Ringweg ongenummerd

De ontwikkeling leidt tot een toename van bebouwing van circa 400 m2. Dit betreft een beperkte toename, waarvoor op het eigen terrein voldoende mogelijkheden zijn om in infiltratie van hemelwater te voorzien. Dit geldt ook voor de overige terreinverharding, waaronder de inrit.

Het hemelwater wordt op eigen terrein geïnfiltreerd via een infiltratievoorziening. Gelet op de omvang en beoogde inrichting van de percelen, wordt geconcludeerd dat voldoende ruimte aanwezig is om de betreffende voorzieningen te realiseren. Er vindt geen afvoer plaats naar het gemeentelijk riool, zodat het watersysteem niet extra wordt belast. Bij de aanvraag omgevingsvergunning voor de bouw van de woning zal de infiltratievoorziening nader worden berekend en vormgegeven. Het afvalwater wordt gescheiden van het hemelwater afgevoerd via het bestaande rioolnetwerk (drukriool). Hiervoor is voldoende capaciteit beschikbaar.

Deellocatie Ysselsteynseweg 40

Ter plaatse van deze deellocatie wordt geen nieuwe verharding of bebouwing mogelijk gemaakt.

Hiermee bestaat er voldoende inzicht in dit aspect dat wordt meegewogen in hoofdstuk 6.

4.2 Activiteiten en milieuzonering

Bedrijven (die milieubelastende activiteiten uitvoeren/ ondernemen) kunnen niet zomaar naast een gevoelige functie, zoals een woning, gerealiseerd worden. Ook andersom moet er zorgvuldig gemotiveerd worden dat een nieuwe gevoelige functie nabij bestaande bedrijven gerealiseerd kan worden.

Milieuzonering is het aanbrengen van een noodzakelijke ruimtelijke scheiding tussen milieubelastende en milieugevoelige functies ter bescherming of vergroting van de leefkwaliteit. Ook zorgt dit ervoor dat (bestaande) bedrijven niet onevenredig in hun belangen worden geschaad. De publicatie “Bedrijven Milieuzonering” van de VNG is, zeker ook gezien jurisprudentie, een goed houvast hierbij. De in deze publicatie genoemde richtafstanden tussen gevoelige functies en milieubelastende activiteiten gelden voor gemiddelde situaties. Er kunnen omstandigheden zijn waarom er toch van een andere afstanden uitgegaan kan of moet worden.

Op weg naar de inwerkingtreding van de Omgevingswet is door de VNG een nieuwe publicatie uitgegeven: Activiteiten en milieuzonering Omgevingswet 2023. Kern van deze publicatie is om de toelating van bedrijven te reguleren op basis van een beschikbaar gestelde milieuruimte per bedrijf, aan de hand van concrete milieunormen. In de nieuwe systematiek wordt de toelating van activiteiten niet meer gekoppeld aan een bij de regels behorende Staat van bedrijfsactiviteiten met milieucategorieën. Dit maakt het ook niet mogelijk de ontwikkeling van nieuwe gevoeligere objecten te toetsen aan bestaande bedrijven. Om die reden wordt voor de beoordeling van de omliggende activiteiten/ functies nog aangesloten bij de richtafstanden uit de publicatie 'Bedrijven en milieuzonering'.

Planspecifiek

Deellocatie Ringweg ongenummerd

De nieuwe woning betreft een nieuw milieugevoelig object. In de onderstaande tabel zijn de omliggende milieubelastende activiteiten en de bijbehorende richtafstanden uit de publicatie 'Bedrijven en milieuzonering' weergegeven.

Functie (adres)   Milieucategorie   Grootste richtafstand (maatgevend aspect)   Feitelijke afstand tot plangebied  
Mengvoederbedrijf, Ysselsteynseweg 69   4.1   200 (geluid)*   ca. 260 m  
Varkenshouderij, Ysselsteynseweg 67   4.1   50 (geluid)*   ca. 240 m  
Varkenshouderij, Ysselsteynseweg 63   4.1   50 (geluid)*   ca. 260 m  

* Geurhinder van veehouderijen en andere bedrijvigheid blijft in deze paragraaf buiten beschouwing. Dit wordt behandeld in paragraaf 4.5.

Uit de voorgaande tabel blijkt dat het plangebied in ieder geval voor de maatgevende aspecten in het kader van milieuzonering voldoet aan de gestelde richtafstanden. Daarmee is voor dit onderdeel sprake van een aanvaardbaar woon- en leefklimaat ter plaatse van het plangebied. Aanvullend kan worden opgemerkt dat de varkenshouderijen aan de Ysselsteynseweg 63 en 67 worden wegbestemd in het kader van de Lbv-plus regeling, voor de mengvoederfabriek aan de Ysselsteynseweg 69 zijn eveneens plannen om deze weg te bestemmen. Tevens blijkt uit de paragraaf Geur (zie 4.5) dat geur afkomstig van bedrijven en veehouderijen geen belemmering vormt voor het initiatief.

Gelet op de afstand tot de bedrijvigheid, als ook de aanwezigheid van al bestaande gevoelige gebouwen tussen de nieuwe woning en de bedrijven, kan eveneens gesteld worden dat het plan niet tot belemmeringen in de eventuele uitbreiding van de bedrijfsvoering van die bedrijven leidt.

Deellocatie Ysselsteynseweg 40

Ter plaatse van deze locatie worden geen nieuwe gevoelige objecten mogelijk gemaakt. Enkel verdwijnt hier de mogelijkheid om een bedrijfswoning te kunnen realiseren en om hier een intensieve veehouderij uit te kunnen oefenen. Negatieve effecten in het kader van milieuzonering zijn daarmee voor deze locatie uitgesloten.

Hiermee bestaat er voldoende inzicht in dit aspect dat wordt meegewogen in hoofdstuk 6.

4.3 Bodem

Ter bescherming van de gezondheid en het milieu zijn er voor het aspect bodemkwaliteit instructieregels opgenomen in het Bkl. De algemene doelstelling van het bodembeleid is het waarborgen van de gebruikswaarde van de bodem en het faciliteren van het duurzaam gebruik van de functionele eigenschappen van de bodem, door in onderlinge samenhang;

  • de bodem te beschermen tegen nieuwe verontreinigingen en aantastingen;
  • te zorgen voor een evenwichtige toedeling van functies aan locaties, rekening houdend met de kwaliteiten van de bodem;
  • de resterende historische verontreinigingen en aantastingen duurzaam en doelmatig te beheren.

Er worden drie basisvormen van bodemgebruik onderscheiden: landbouw/natuur, wonen en industrie. De gemeente stelt de waarde voor de toelaatbare kwaliteit van de bodem vast (bodemkwaliteitskaart) en neemt dit op in het definitieve omgevingsplan (art. 5.89i Bkl). Deze waarden kunnen per gebied of per gebruiksfunctie verschillen.

Bij wijzigingen van activiteiten geldt dat de bodem geschikt moet zijn voor het beoogde gebruik. Dit kan betekenen dat een onderzoek moet worden verricht naar de bodem- en grondwaterkwaliteit.

Planspecifiek

Deellocatie Ringweg ongenummerd

Met het initiatief wordt een nieuwe bodemgevoelige functie mogelijk gemaakt. Om die reden is een historisch bodemonderzoek (zie bijlage 1) uitgevoerd. Op basis van de resultaten van het uitgevoerde onderzoek wordt geconcludeerd dat de onderzoekslocatie als onverdacht ten aanzien van bodemverontreiniging te beschouwen is. Wel is bijvoorbeeld voor het vergraven of toepassen van meer dan 25 m3 grond een milieuverklaring bodemkwaliteit (meestal bodemonderzoek) nodig.

Deellocatie Ysselsteynseweg 40

Voor deze locatie worden geen bodemgevoelige functies mogelijk gemaakt. Het uitvoeren van een bodemonderzoek voor deze locatie is daarom niet nodig.

Hiermee bestaat er voldoende inzicht in dit aspect dat wordt meegewogen in hoofdstuk 6.

4.4 Luchtkwaliteit

De hoofdlijnen voor regelgeving rondom luchtkwaliteitseisen staan beschreven in de instructieregels opgenomen in het Bkl. Ter bescherming van de gezondheid zijn voor het aspect luchtkwaliteit instructieregels opgenomen in paragraaf 5.1.4.1 Bkl en zijn de 'omgevingswaarden richtlijn luchtkwaliteit' opgenomen in paragraaf 2.2.1.1 Bkl. Volgens deze regels gelden zogeheten omgevingswaarden voor onder andere de in de buitenlucht voorkomende stikstofdioxide (NO2) en fijnstof (PM10).

Een activiteit is toelaatbaar als aan één van de volgende voorwaarden wordt voldaan:

  • er is geen sprake van een feitelijke of dreigende overschrijding van een resultaatverplichting;
  • het initiatief leidt per saldo niet tot een verslechtering van de luchtkwaliteit;
  • het initiatief draagt alleen niet in betekenende mate bij aan de luchtverontreiniging.

Mede door het Nationaal Samenwerkingsprogramma Luchtkwaliteit (NSL) is in de afgelopen jaren in Nederland de luchtkwaliteit aanzienlijk verbeterd. Vanwege deze verbetering komt het NSL na de inwerkingtreding van de Omgevingswet dan ook te vervallen.

Niet in betekenende mate (NIBM)

Voor een activiteit die niet in betekenende mate (NIBM) bijdraagt aan de luchtverontreiniging, is geen toetsing aan de rijksomgevingswaarden voor stikstofdioxide en fijnstof nodig. Uit artikel 5.53 en 5.54 Bkl volgt dat een initiatief niet in betekenende mate bijdraagt aan de luchtkwaliteit als de toename van de concentratie NO2 en PM10 niet hoger is dan 1,2 ug/m3. Dat is 3% van de omgevingswaarde voor de jaargemiddelde concentraties. Er zijn twee mogelijkheden om aannemelijk te maken dat een initiatief binnen de NIBM-grens blijft:

  • 1. Motiveren dat het initiatief binnen de getalsmatige grenzen van een aangewezen categorie blijft. Onder deze 'standaardgevallen NIBM' vallen kantoren, woonwijken en het telen van gewassen. Dit moet wel onder een bepaalde omvang blijven conform artikel 5.54 Bkl. Valt een initiatief binnen de genoemde categorie, maar niet binnen de gestelde grenzen? Het is dan mogelijk om alsnog via detailberekeningen aannemelijk te maken dat de 3%-grens niet wordt overschreden.
  • 2. Op een andere manier aannemelijk maken dat een initiatief de 3%-grens niet overschrijdt. Soms kan een kwalitatieve berekening voldoende zijn. Veel mensen bepalen met de NIBM-tool op een eenvoudige en snelle manier of een initiatief in betekenende mate bijdraagt aan de luchtverontreiniging. Soms zijn detailberekeningen nodig als aanvulling op de NIBM-tool.

Aandachtsgebieden

Aandachtsgebieden zijn locaties met hogere concentraties stikstofdioxide (NO2) en/of fijnstof (PM10). De aandachtsgebieden staan in artikel 5.51 lid 2 (aandachtsgebieden voor zowel stikstofdioxide als fijnstof) en lid 3 (aandachtsgebieden voor fijnstof) Bkl. Gemeenten die onder agglomeraties vallen staan in artikel 2.38 (aanwijzing agglomeraties richtlijn luchtkwaliteit en richtlijn gevaarlijke stoffen in de lucht) Omgevingsregeling. In enkele situaties moet de luchtkwaliteit altijd worden beoordeeld:

  • bij een omgevingsvergunning voor een milieubelastende activiteit
  • bij de aanleg van een tunnel langer dan 100 meter, of als een tunnel wijzigt en daarbij minimaal 100 meter toeneemt;
  • bij de aanleg van een autoweg of een autosnelweg.

Op plekken waar mensen relatief kort verblijven, als het gaat om arbeidsplaatsen (bedrijventerreinen en bedrijfswoningen) en op locaties waar mensen niet kunnen komen is toetsing aan de omgevingswaarden voor luchtkwaliteit niet nodig.

Planspecifiek

Deellocatie Ringweg ongenummerd

Luchtkwaliteit ter plaatse

Het dichtstbijzijnde toetspunt voor luchtkwaliteit bij het plangebied is de receptor wegverkeer 50052969_233267, aan de N277 ten zuidwesten van het plangebied. In de tabel hieronder zijn de totale concentraties van stikstofdioxide, fijnstof en de fijnere fractie van fijnstof weergeven.

  NO2 
(stikstofdioxide)  
PM10
(fijnstof)  
PM2,5 (fijnere fractie van fijnstof)  
Gemeten totale concentratie jaargemiddelde 2020 (µg/m3)   11,7 µg/m3   17,1 µg/m3   8,9 µg/m3  
Grenswaarde concentratie (µg/m3)   40 µg/m3   40 µg/m3   25 µg/m3  

De concentraties stikstofdioxide en fijn stof liggen [ruim onder] de gestelde grenswaarden. Met betrekking tot de luchtkwaliteit zijn geen belemmeringen voor onderhavig initiatief.

Bijdrage van het initiatief

Ten aanzien van de bijdrage aan luchtkwaliteit is het initiatief van geringe omvang ten opzichte van de benoemde grenswaarde (3%, vergelijkbaar met 1.500 woningen). Op basis van de te verwachten toename aan verkeersbewegingen ten gevolge van het initiatief is te concluderen dat dit initiatief 'niet in betekenende mate' bijdraagt aan de verslechtering van de luchtkwaliteit. Een nadere toetsing aan de rijksomgevingswaarden voor stikstofdioxide en fijnstof kan daarom achterwege blijven.

Het plangebied ligt binnen een van de genoemde aandachtsgebieden (artikel 5.51 luchtkwaliteit in aandachtsgebieden) voor alleen fijnstof. Dit heeft te maken met de concentratie veehouderijen in de gemeente Venray. Het initiatief heeft geen betrekking op het toevoegen van een veehouderij en heeft daarmee geen significante invloed op de hoeveelheid fijnstof. Omdat de gehele gemeente Venray binnen dit aandachtsgebied ligt, wordt de situatie met betrekking tot luchtkwaliteit als aanvaardbaar beschouwd.

Deellocatie Ysselsteynseweg 40

Ter plaatse van deze deellocatie vinden geen ontwikkelingen plaats waarvoor het aspect luchtkwaliteit relevant is. Hier hoeft niet nader op ingegaan te worden.

Hiermee bestaat er voldoende inzicht in dit aspect dat wordt meegewogen in hoofdstuk 6.

4.5 Geur

In de regelgeving is bepaald dat een omgevingsplan erin voorziet dat de geur van een activiteit op een geurgevoelig gebouw (artikel 5.91 Bkl) aanvaardbaar moet zijn (artikel 5.92, tweede lid, Bkl). In artikel 5.91 van het Bkl is de definitie van een geurgevoelig gebouw opgenomen. Het gaat dan in ieder geval om woningen, onderwijsinstellingen, gebouwen met gezondheidszorgfuncties en kinderopvang met bedgebied (wat inhoudt dat er slaapgelegenheid is). Dit betekent dat de gemeente moet beoordelen of waarden, afstanden of gebruiksregels leiden tot een aanvaardbaar hinderniveau. De gemeente moet onder de Omgevingswet rekening houden met mogelijke cumulatie van geur door meerdere activiteiten.

De activiteiten dienen te voldoen aan de regels die in het tijdelijk omgevingsplan staan. Indien er nog geen aanpassing heeft plaatsgevonden van het tijdelijk omgevingsplan en sprake is van een activiteit/inrichting die/dat voorheen onder het Activiteitenbesluit milieubeheer viel, dan gelden de regels uit de Bruidsschat. De Bruidsschat bevat regels over:

  • Geur door het houden van landbouwhuisdieren en paarden en pony's voor het berijden in een dierenverblijf (par. 22.3.6.2 BS);
  • Geur door andere agrarische activiteiten, zoals o.a. het opslaan van vaste mest, champost of dikke fractie en het composteren of opslaan van groenafval (par. 22.3.6.4 BS);
  • Geur door het exploiteren van zuiveringstechnische werken (par. 22.3.6.5 BS).

Voor geur zijn er voor dierenverblijven voor landbouwhuisdieren specifieke instructieregels waar de gemeente zich aan moet houden. In deze instructieregels zijn voor landbouwhuisdieren met een geuremissiefactor, twee typen normen opgenomen: standaardwaarden en grenswaarden. In een omgevingsplan kan de gemeente afwijken van deze standaardwaarden, zolang dit onder de gestelde grenswaarden blijft.

Geurgevoelig gebouw   Standaardwaarde   Grenswaarde  
Gelegen binnen de bebouwingscontour geur en buiten een concentratiegebied   2,0 ouE/m3   8,0 ouE/m3   
Gelegen binnen de bebouwingscontour geur en binnen een concentratiegebied   3,0 ouE/m3   14,0 ouE/m3   
Gelegen buiten de bebouwingscontour geur en buiten een concentratiegebied   8,0 ouE/m3    20,0 ouE/m3   
Gelegen buiten de bebouwingscontour geur en binnen een concentratiegebied   14,0 ouE/m3   35,0 ouE/m3   

Tabel Standaardwaarde en grenswaarde toelaatbare geur (ouE/m 3 als 98-percentiel) door houden landbouwhuisdieren met geuremissiefactor op een geurgevoelig gebouw

In het Bkl wordt onderscheid gemaakt tussen concentratiegebieden en niet-concentratiegebieden en binnen en buiten de bebouwingscontour. Het onderscheid tussen concentratiegebieden en niet-concentratiegebieden valt terug te voeren op een verschil in de relatie tussen geurbelasting en geurhinder. Het RIVM geeft aan dat er geen gezondheidskundige grenswaarden zijn voor geurbelasting of geurhinder. Welk percentage door geur gehinderde omwonenden aanvaardbaar is, is een beleidsmatige keuze.

Voor dieren waarvoor in de Omgevingsregeling geen omrekeningsfactoren zijn vastgesteld, zoals melkrundvee, vrouwelijk jongvee en paarden gelden afstandseisen. De minimaal aan te houden afstand bedraagt 50 meter tot een geurgevoelig object buiten de bebouwde kom en 100 meter tot een geurgevoelig object binnen de bebouwde kom. Deze afstanden gelden ongeacht het aantal dieren dat er gehouden wordt en worden gemeten vanaf het dichtstbijzijnde emissiepunt van een stal waarin de betreffende dieren worden gehouden.

Daarnaast moet de afstand van de buitenzijde van een dierenverblijf (onafhankelijk van de diersoort die er gehouden wordt) minimaal 25 meter bedragen tot een geurgevoelig object buiten de bebouwde kom en 50 meter bedragen tot een geurgevoelig object binnen de bebouwde kom (gevel-gevel afstand).

Geurverordening gemeente Venray

De gemeenteraad van de gemeente Venray heeft een Verordening geurhinder en veehouderij vastgesteld. In deze verordening wijkt de gemeente Venray deels af van de wettelijke normen. De

geurverordening van de gemeente Venray stelt de volgende normen:

  • 1. Bestaande woongebieden 3,0 ouE/m³;
  • 2. Zoekgebieden woningbouw en bedrijventerreinen 8,0 ouE/m³;
  • 3. Buitengebied 14,0 ouE/m³.

Aanvulling op de Gebiedsvisie geurhinder en veehouderij gemeente Venray

In de Aanvulling op de Gebiedsvisie geurhinder en veehouderij gemeente Venray heeft de gemeente Venray vastgelegd wat wordt verstaan onder een aanvaardbaar woon- en leefklimaat. Er is onderscheid gemaakt tussen het buitengebied, de kerkdorpen, zoekgebieden woningbouw, vakantiepark de Witte Vennen, de clustering TBS/Pascalis/Dichterbij en bedrijfsterreinen. Op de 'Kaart behorende bij Aanpassing verordening geurhinder en veehouderij gemeente Venray september 2009' is per deelgebied aangegeven wat de norm is voor een aanvaardbaar woon- en leefklimaat. In het buitengebied is de norm voor een aanvaardbaar woon- en leefklimaat vastgesteld op 14 ouE/m3 voor de voorgrondbelasting en 20 ouE/m3 voor de achtergrondbelasting.

Planspecifiek

Deellocatie Ringweg ongenummerd

Met onderhavig initiatief wordt op de deellocatie Ringweg ongenummerd een nieuwe geurgevoelige bebouwing (woning) mogelijk gemaakt. De situatie met betrekking tot geur is daarom beoordeeld aan de hand van de geurkaarten van de gemeente Venray.

Voorgrondbelasting

Voor wat de voorgrondbelasting van een veehouderij is gekeken naar de veehouderij die voor de onderhavige locatie het meest van invloed is. De gemeente Venray heeft een kaart (situatie 2022) gemaakt met de geurhindercontouren 3 ouE/m3, 8 ouE/m3 en 14 ouE/m3 van alle veehouderijbedrijven in Venray. Ook zijn de vaste afstand contouren van 50m en 100m weergegeven voor bedrijven met 'vaste afstandsdieren'. Navolgende afbeelding toont een uitsnede van deze kaart.

afbeelding "i_NL.IMRO.0984.TAM25012-on01_0011.png"

Uitsnede kaart 'indicatieve geurhindercontouren'

Uit de kaart blijkt dat de varkenshouderijen aan de Ysselsteynseweg 67 en 63 in Ysselsteyn het meest van invloed zijn op de locatie. De locatie ligt binnen de indicatieve geurhindercontour 14 ouE/m3 rondom het agrarisch bouwvlak van Ysselsteynseweg 63. Omdat de kaart indicatief is, en om daadwerkelijk vast te stellen of ten aanzien van de veehouderij wel sprake is van een aanvaardbaar woon- en leefklimaat is daarom een berekening (zie bijlage 2) uitgevoerd van de voorgrondbelasting met het programma V-stacks vergunning.

Omdat de varkenshouderijen aan de Ysselsteynseweg 63 en 67 gesaneerd worden in het kader van de Lbv-plus regeling, is in de berekening er al rekening mee gehouden dat deze bedrijven gefaseerd stoppen. Het verzoek voor de gefaseerde algehele intrekking van de vergunningen van deze bedrijven is reeds in behandeling bij de gemeente Venray. Uit de berekening volgt een hoogste geurbelasting na de eerste gedeeltelijke intrekking van 6,0 ouE/m3 (rekenpunt 02) vanuit de veehouderij Ysselsteynseweg 67. Hiermee wordt bevestigd dat wordt voldaan aan de gemeentelijke geurnormen ten aanzien van voorgrondbelasting. Omgekeerd levert de ontwikkeling van een burgerwoning geen belemmeringen op voor de ontwikkelingsmogelijkheden van veehouderijen in de omgeving, omdat andere, reeds aanwezige geurgevoelige objecten dichterbij zijn gelegen en/of daarnaast een lagere geurnorm hebben.

Achtergrondbelasting

Voor wat betreft de achtergrondbelasting van geur is gekeken naar de veehouderijen in de omgeving van de deellocatie. De gemeente Venray heeft een kaart (situatie oktober 2022) gemaakt voor de indicatieve achtergrondbelasting, veroorzaakt door al die veehouderijen. De navolgende afbeelding toont een uitsnede van deze kaart.

afbeelding "i_NL.IMRO.0984.TAM25012-on01_0012.png"

Uitsnede 'kaart achtergrondbelasting geur'

Uit voorgaande kaart blijkt dat voor de deellocatie een tamelijk slechte beoordeling ten aanzien van geurhinder van toepassing is. Om vast te stellen of er sprake is van een aanvaardbaar woon- en leefklimaat is daarom aanvullend een berekening uitgevoerd van de huidige achtergrondgeurbelasting met het programma V-stacks gebied (zie bijlage 2). Ook hier is er in de berekening rekening mee gehouden dat de varkenshouderijen aan de Ysselsteynseweg 63, 65, 67 en 78 gesaneerd worden in het kader van de Lbv-plus regeling en dat deze bedrijven gefaseerd stoppen. Het verzoek voor de gefaseerde algehele intrekking van de vergunningen van deze bedrijven is reeds in behandeling bij de gemeente Venray. Uit de berekening volgt een hoogste geurbelasting van 21,9 ouE/m3. Hiermee wordt niet voldaan aan de geurnormen.

Voor de locaties Ysselsteynseweg 63 en 67 zijn echter intrekkingsverzoeken in procedure, waarmee de agrarische activiteiten aldaar verdwijnen (gedeeltelijk per 01-08-2025 en volledig per 01-02-2026, raadpleegbaar in intrekkingsverzoeken Z2025-00001611 en Z2025-00001612). Om te beoordelen wat de situatie is na afronding van deze verzoeken, is een extra berekening uitgevoerd. Uit deze berekening volgt dat de hoogste geurbelasting na de eerste gedeeltelijke intrekkingen 18,478 ouE/m3 (rekenpunt 02) bedraagt. Hiermee voldoet het plan aan de geurnorm voor een aanvaardbaar woon- en leefklimaat. Op termijn zal de geurbelasting (voorgrond en achtergrond) verder dalen door de volledige intrekkingen. Er is op dit moment geen reden om aan te nemen dat deze verzoeken niet door zouden gaan.

Deellocatie Ysselsteynseweg 40

Op deze locatie verdwijnt de geurbelasting door de varkenshouderij. Negatieve effecten met betrekking tot dit aspect zijn uitgesloten.

Hiermee bestaat er voldoende inzicht in dit aspect dat wordt meegewogen in hoofdstuk 6.

4.6 Geluid

Veel functies in de fysieke leefomgeving hebben te maken met geluid. Ze maken geluid of ze worden eraan blootgesteld. De regels van het Bkl over geluid gaan over het beheersen van geluid door wegen, spoorwegen en industrieterreinen en de bescherming van geluidgevoelige functies. In het Bkl zijn instructieregels opgenomen hoe om te gaan met geluid m.b.t. geluidgevoelige functies en stiltegebieden. Bij geluidgevoelige functies gaat het om gebouwen ten behoeve van functies zoals wonen, onderwijs of zorg. Voor andere gebouwen (functies) of locaties bepaalt de gemeente zelf de mate van bescherming tegen geluid. Dat doet de gemeente vanuit haar taak 'evenwichtige toedeling van functies aan locaties'.

In de bruidsschat is het onderdeel geluid geregeld in paragraaf 22.3.4. Daarin staan regels over geluid door een activiteit op of in een geluidgevoelig functie die op een locatie is toegelaten op grond van een omgevingsplan of een omgevingsvergunning voor een omgevingsplanactiviteit. In de bruidsschat zijn waarden bepaald (zie artikel 22.57 Bruidsschat waar waarden gelden).

Het Bkl bevat standaardwaarden en grenswaarden voor geluid en staan in de volgende tabel.

Geluidbronsoort   Standaardwaarde, in dB.   Grenswaarde, in dB.  
Rijks- en provinciale wegen. In Lden   50   60  
Gemeente- en waterschapswegen. In Lden   53   70  
Hoofd- en lokale spoorwegen. In Lden   55   65  
Industrieterrein   Lden   50   55  
  Lnight   40   45  

Standaardwaarde en grenswaarde op de gevel van een geluidgevoelig gebouw bij toelaten geluidbron, Tabel 3.34 en.3.35 Bkl

Het bevoegd gezag moet voorzien in een aanvaardbaar geluidsniveau door een lokale (spoor)weg op een geluidgevoelig gebouw (artikel 5.78l, lid 2 Bkl). De kans op gezondheidsschade is klein als het geluid voldoet aan de standaardwaarde. Minder geluid dan de standaardwaarde of het geluid op het tijdstip van de wijziging van het omgevingsplan, is aanvaardbaar (artikel 5.78m, lid 1 en lid 2 Bkl). Het bevoegd gezag mag meer geluid dan de standaardwaarde als aanvaardbaar beoordelen. Het besluit moet dan voldoen aan de eisen uit de instructieregels (artikelen 5.78m tot en met 5.78q Bkl). Op grond van artikel 5.78, lid 3 Bkl bepaalt het omgevingsplan dat de waarden gelden:

  • op een aangewezen geluidgevoelig gebouw:
    • 1. op de gevel, als het gaat om een aanwezig geluidgevoelig gebouw
    • 2. op de locatie waar een gevel mag komen, als het gaat om een nieuw te bouwen geluidgevoelig gebouw
  • op de begrenzing van de locatie voor het plaatsen van een woonschip of woonwagen
  • in geval van een binnenwaarde, in een geluidgevoelige ruimte.

Het bevoegd gezag kan alleen geluid tot en met de grenswaarde op de gevel van een geluidgevoelig gebouw toestaan als ze:

  • 1. geen geluidbeperkende maatregelen kan treffen om aan de standaardwaarde te voldoen (artikel 5.78n, lid 1, onder a Bkl);
  • 2. de overschrijding van de standaardwaarde zoveel mogelijk heeft beperkt door het treffen van geluidbeperkende maatregelen (artikel 5.78n, lid 1b Bkl);
  • 3. bij voorwaarde 1 en 2 geluidbeperkende maatregelen overweegt die financieel doelmatig zijn en tegen het treffen geen overwegende bezwaren van stedenbouwkundige, verkeerskundige, vervoerskundige, landschappelijke of technische aard bestaan (artikel 5.78n, lid 2 Bkl);
  • 4. besluit tot geluidwerende maatregelen als het geluid in een geluidgevoelige ruimte hoger is dan de grenswaarde in geluidgevoelig ruimte (binnenwaarde) (artikel 3.52 Bkl). De karakteristieke geluidwering van deze ruimte is minstens 3 dB groter dan het verschil tussen het gezamenlijk geluid en de grenswaarde. Deze grenswaarde in geluidgevoelig ruimte is meestal 36 dB. In een beperkt aantal bestaande situaties is de grenswaarde 41 dB (artikel 3.52, lid 1, onder a sub 1 Bkl);
  • 5. het gecumuleerd geluid beoordeelt (artikel 5.78p Bkl);
  • 6. het gezamenlijk geluid bepaalt (artikel 5.78q Bkl).

De geluidsregels van het Bkl zijn alleen van toepassing bij het realiseren van geluidgevoelige functies binnen een geluidsaandachtsgebied. Dit omvang van dit aandachtsgebied is afhankelijk van de verkeerdrukte, rijsnelheid, afstand van de locatie tot de weg en eventuele afschermende bebouwing.

Geluidsaandachtsgebied   Breedte (m)  
Weg bestaande uit 1 of 2 rijstroken, snelheid 30 km/u of minder   100  
Weg bestaande uit 1 of 2 rijstroken, snelheid meer dan 30 km/u   200  
Weg bestaande uit 3 of meer rijstroken   350  
Lokale spoorweg bestaande uit 1 of 2 sporen   200  
Lokale spoorweg bestaande uit 3 of meer sporen   350  

Tabel: Breedte van het geluidaandachtsgebied vanaf de rand van de weg of de buitenste spoorstaaf, artikel 17.5 omgevingsregeling

Wegen met een verkeersintensiteit van in elk geval minder dan 1.000 motorvoertuigen per etmaal als kalenderjaargemiddelde hebben geen aandachtsgebied.

Planspecifiek

Deellocatie Ringweg ongenummerd

Met het initiatief wordt een nieuw geluidgevoelige object mogelijk gemaakt. Om de effecten met betrekking tot geluidhinder te beoordelen, is een akoestisch onderzoek uitgevoerd (zie bijlage 3). Uit het onderzoek volgt dat:

  • alle omliggende wegen een intensiteit kennen van minder dan 1.000 mvt/etmaal. Toetsing aan de standaard-/grenswaarden uit het Bkl is daarom niet van toepassing;
  • geen aanvullende maatregelen nodig zijn om te voldoen aan de eisen aangaande de gevelgeluidwering;
  • de nieuwe woonfunctie geen inbreuk doet op de geluidruimte van omliggende bedrijven/inrichtingen;
  • de situatie met betrekking tot geluid passend is binnen een evenwichtige toedeling van functies aan locaties.

Daarmee vormt het aspect geluid geen belemmeringen ten aanzien van het initiatief. Andere geluidsbronnen in de omgeving zijn niet aanwezig.

Deellocatie Ysselsteynseweg 40

Op deze locatie worden geen geurgevoelige objecten mogelijk gemaakt. Effecten met betrekking tot geluid zijn op voorhand uit te sluiten.

Hiermee bestaat er voldoende inzicht in dit aspect dat wordt meegewogen in hoofdstuk 6.

4.7 Omgevingsveiligheid

Omgevingsveiligheid beschrijft de risico's die ontstaan als gevolg van opslag, productie, gebruik en vervoer van gevaarlijke stoffen en windturbines. Voor omgevingsveiligheid zijn regels opgenomen in paragraaf 5.1.2 van het Bkl. De paragrafen 5.1.2.2 tot en met 5.1.2.6 van het Bkl gaan over het toelaten van beperkt kwetsbare, kwetsbare en zeer kwetsbare gebouwen en beperkt kwetsbare en kwetsbare locaties in verband met het externe veiligheidsrisico van een activiteit die op een locatie is toegelaten op grond van een omgevingsplan of een omgevingsvergunning voor een buitenplanse omgevingsplanactiviteit.

Plaatsgebonden risico

Grenswaarden en standaardwaarden voor het Plaatsgebonden Risico (PR) ten aanzien van (zeer) (beperkt) kwetsbare gebouwen en (beperkt) kwetsbare locaties zijn opgenomen in artikel 5.6 tot en met artikel 5.11a van het Bkl. Grenswaarden voor kwetsbare en zeer kwetsbare gebouwen en kwetsbare locaties (art. 5.7 lid 1 Bkl) worden in een Omgevingsplan in acht genomen. Met standaardwaarden voor beperkt kwetsbare gebouwen en locaties wordt in een omgevingsplan rekening gehouden (art. 5.11 Bkl). Voor het plaatsgebonden risico gelden, afhankelijk van de activiteit, vastgestelde afstanden of te berekenen afstanden (bijlage VII Bkl).

Groepsrisico

Bij groepsrisico is sprake van 'aandachtsgebieden'. Hierbij gaat het om de kans per jaar dat tien of meer personen overlijden als rechtstreeks gevolg van een ongewoon voorval binnen een aandachtsgebied. Risicovolle activiteiten hebben van rechtswege aandachtsgebieden (art. 5.12 Bkl). Dit zijn gebieden rond activiteiten met gevaarlijke stoffen die zichtbaar maken waar mensen binnenshuis, zonder aanvullende maatregelen onvoldoende beschermd zijn tegen de gevolgen van ongevallen met gevaarlijke stoffen (RIVM). Aandachtsgebieden zijn er voor de scenario's brand, explosie en gifwolk. Afhankelijk van het type activiteit met gevaarlijke stoffen, zijn er voor het aandachtsgebied in de regelgeving vaste afstanden vastgesteld of zijn deze afstanden rekenkundig te bepalen (bijlage VII Bkl). Aandachtsgebieden worden zichtbaar gemaakt in het Register externe veiligheidsrisico's (REV).

Binnen een aandachtsgebied kan sprake zijn van een voorschriftengebied. Een gemeente kan in het omgevingsplan afzien van aanwijzing van een brand- of explosievoorschriftengebied of een kleiner brand- of explosievoorschriftengebied aanwijzen (art. 5.14 Bkl). Als het initiatief ligt in een voorschriftengebied, dan gelden voor nieuwbouw aanvullende bouweisen uit het Besluit bouwwerken leefomgeving (art. 4.90 tot en met 4.96 Bbl). Voor zeer kwetsbare gebouwen, zoals scholen, kinderdagopvang, en verzorgingstehuizen, geldt altijd een voorschriftengebied, en gelden er dus altijd aanvullende bouweisen bij nieuwbouw (art. 5.14 Bkl).

Los van een eventueel voorschriftengebied kan een gemeente aanvullende eisen stellen, bijvoorbeeld aan vluchtroutes en de bereikbaarheid van het gebied door hulpdiensten. Dergelijke eisen worden dan opgenomen in de omgevingsvergunning voor het bouwen.

Een berekening van het groepsrisico is onder de Omgevingswet optioneel; het is niet meer verplicht om het groepsrisico te bepalen, maar een gemeente mag hier nog wel om vragen (via een voorschrift) om de toelaatbaarheid van de situatie te beoordelen. Uitgangspunt is dat personen buiten een aandachtsgebied in een gebouw (dat voldoet aan de eisen uit het BBL) voldoende zijn beschermd tegen de mogelijke effecten van een grootschalig ongeval met gevaarlijke stoffen bij de risicobron.

Planspecifiek

Deellocatie Ringweg ongenummerd

Via de website atlasleefomgeving.nl kan voor de locatie worden vastgesteld of er in de directe omgeving inrichtingen, buisleidingen en/of belangrijke transportroutes aanwezig zijn die in het kader van de omgevingsveiligheid van belang zijn. Bijgevoegd een screenshot van die website. Het plangebied is hier globaal aangegeven met de rode cirkel.

afbeelding "i_NL.IMRO.0984.TAM25012-on01_0013.png"

Uitsnede risicokaart (bron: atlasleefomgeving.nl)

Op voorgaande afbeelding is te zien dat het plangebied niet gelegen is binnen een aandachtsgebied of PR-gebied van een in het kader van omgevingsveiligheid relevante risicobron. Alle risicobronnen bevinden zich op ruim voldoende afstand van het plangebied. Significante effecten vanuit het aspect omgevingsveiligheid ten aanzien van het plan zijn daarmee uit te sluiten. Een nadere verantwoording voor het groepsrisico is niet nodig.

Deellocatie Ysselsteynseweg 40

Op deze locatie worden geen functies mogelijk gemaakt die relevant zijn met betrekking tot het aspect omgevingsveiligheid. Belemmeringen zijn niet aan de orde.

Hiermee bestaat er voldoende inzicht in dit aspect dat wordt meegewogen in hoofdstuk 6.

4.8 Trilling

Trillingen kunnen nadelige gevolgen hebben voor de kwaliteit van de fysieke leefomgeving. Ze kunnen effect hebben op het welzijn of schade aan gebouwen veroorzaken. De Omgevingswet beschermt (delen van) gebouwen. Trilling wordt gezien als een milieubelastende activiteit. In het omgevingsplan neemt de gemeente regels op voor trillingen door milieubelastende activiteiten. Vastgelegd wordt welke trillingen door een activiteit in trillinggevoelige ruimten van trillinggevoelige gebouwen aanvaardbaar zijn. Hiervoor gelden de instructieregels over trillingen door activiteiten op trillinggevoelige gebouwen in het Bkl.

Een trillinggevoelig gebouw is een gebouw of een gedeelte van een gebouw met een:

  • a. woonfunctie en nevengebruiksfuncties daarvan;
  • b. onderwijsfunctie en nevengebruiksfuncties daarvan;
  • c. gezondheidszorgfuncties met bedgebied en nevengebruiksfuncties daarvan; of
  • d. bijeenkomstfunctie voor kinderopvang met bedgebied en nevengebruiksfuncties daarvan.

Voor andere gebouwen of locaties bepaalt de gemeente zelf de mate van bescherming tegen trillingen. Het onderdeel Trillingen is geregeld in paragraaf 22.3.5 van de Bruidsschat. Daarin worden regels gesteld aan trillingen in een frequentie van 1 tot 80 Hz door een activiteit in een trillinggevoelige ruimte van een trillinggevoelig gebouw, die op een locatie is toegelaten op grond van een omgevingsplan of een omgevingsvergunning voor een omgevingsplanactiviteit. Er gelden maximale waarden voor continue trillingen en voor herhaald voorkomende trillingen. De maximale waarden zijn opgenomen in de tabellen in artikel 22.88 en 22.87a van de Bruidsschat.

Planspecifiek

Deellocatie Ringweg ongenummerd

In de ruime omgeving van het plangebied zijn geen activiteiten aanwezig die trillingen kunnen veroorzaken zoals grote wegen, spoorlijnen en/of industriële machines.

Deellocatie Ysselsteynseweg 40

Het aspect trillingen is met betrekking tot deze deellocatie niet relevant. Belemmeringen zijn uit te sluiten.

Hiermee bestaat er voldoende inzicht in dit aspect dat wordt meegewogen in hoofdstuk 6.

4.9 M.e.r.-beoordeling

De wetgeving omtrent de milieueffectrapportage (m.e.r) is opgenomen in afdeling 16.4 van de Omgevingswet en in hoofdstuk 11 en bijlage V bij het Omgevingsbesluit.

In artikel 16.34, tweede lid van de Omgevingswet is aangegeven dat onder een plan of programma, als bedoeld in artikel 2, onder a, van de SMB-richtlijn (richtlijn 2001/42/EG (Strategische milieubeoordeling), in ieder geval wordt verstaan een omgevingsvisie, een programma, een omgevingsplan en een voorkeursbeslissing. Het bevoegd gezag zal per specifiek geval na moeten gaan of er sprake is van een plan of programma in de zin van de SMB-richtlijn.

Er wordt onder de Omgevingswet geen onderscheid meer gemaakt tussen een formele en vormvrije m.e.r-beoordeling op grond van aangewezen drempelwaarden. Er is dus nog maar één m.e.r.-beoordelingsprocedure. Beoordeling of een m.e.r.-procedure of m.e.r.-beoordeling plaats moet vinden volgt uit Bijlage V van het Omgevingsbesluit.

  • 1. De eerste stap is te kijken of het project past binnen de omschrijving van een project in kolom 1.
  • 2. Vervolgens moet gekeken worden of in kolom 4 'de omgevingsvergunning' of 'het omgevingsplan' staat. Het omgevingsplan is relevant als in het plan vergunningplichtige activiteiten worden aangewezen.
  • 3. Als bovenstaande stappen van toepassing zijn op het project, moet bepaald worden of voor het project een mer-plicht of een mer-beoordelingsplicht geldt. Dit gebeurt door te kijken naar de kolommen 2 en 3.
    • a. Voldoet het project aan de voorwaarden van kolom 2? Dan geldt voor het project een 'project-mer-plicht'.
    • b. Voldoet het project aan de voorwaarden van kolom 3? Dan geldt voor het project een 'project-mer-beoordelingsplicht'.

Als er voor het project een omgevingsvergunning wordt aangevraagd voor een omgevingsplanactiviteit, dan wordt die omgevingsvergunning aangemerkt als het besluit in plaats van het besluit tot vaststelling van een omgevingsplan. Dit volgt uit artikel 11.8 onder 3 van het Omgevingsbesluit. Daarmee geldt er dus ook voor omgevingsvergunningaanvragen die niet in kolom 4 staan wel de mer-(beoordelings)plicht.

In Bijlage V van het Omgevingsbesluit is in categorie J11 vermeld dat voor een stedelijk ontwikkelingstraject mogelijk een mer-(beoordelings)plicht geldt. Het begrip stedelijk ontwikkelingstraject is echter nergens gedefinieerd of gekwantificeerd.

Planspecifiek

Gelet op de aard en de omvang van het project (verplaatsing van het bouwrecht van één woning) kan dit niet als een stedelijk ontwikkelingsproject worden aangemerkt. Het opstellen van een mer-beoordelingsnotitie is daarom niet nodig. Er is ook geen sprake van een mer-plicht.

4.10 Explosieven

Op vele locaties in Nederland bevinden zich nog conventionele explosieven uit de Tweede Wereldoorlog in de ondergrond, zoals niet ontplofte vliegtuigbommen (blindgangers, granaten, mijnen en (handwapen)munitie. Het gehele grondgebied van de gemeente Venray heeft in de Tweede Wereldoorlog zwaar onder vuur gelegen. Bij eventuele grondwerkzaamheden en nieuwe ontwikkelingen in het plangebied, dient er uit het oogpunt van veiligheid en zorgvuldigheid gezocht te worden naar niet gesprongen explosieven (NGE).

Met behulp van het explosievenonderzoek worden de aanwezigheid en risico's van explosieven uit de Tweede Wereldoorlog in kaart gebracht. De gemeente Venray adviseert bij grondwerkzaamheden en nieuwe ontwikkelingen een detectieonderzoek uit te (laten) voeren.

Dit onderzoek dient plaats te vinden in het kader van de Arbowetgeving en is in het kader van de planologische procedure niet juridisch afdwingbaar. Het is echter te allen tijden de verantwoordelijkheid van de eigenaar van de grond om bij grondwerkzaamheden te zorgen voor een gezonde en veilige werkomgeving.

4.11 Gewasbeschermingsmiddelen

Bij het telen van bollen-, boom- en fruit in de open lucht kan het gebruik van gewasbeschermingsmiddelen van belang zijn. Dit vanwege mogelijk vrijkomende drift (verwaaiing van spuitvloeistof) bij het bespuiten. Er gelden, behoudens het niet mogen belasten van oppervlaktewater, in Nederland geen wettelijke bepalingen over een minimaal aan te houden afstand tussen de teeltgronden en voor gewasbeschermingsmiddelen gevoelige objecten, zoals woningen en bedrijven. In de praktijk wordt daarom een vuistregel gehanteerd om een afstand van 50 meter aan te houden tussen genoemde teelten en een gevoelige bestemming. Dit is een in de praktijk gegroeide indicatieve vuistregel. Er kunnen omstandigheden zijn om (gemotiveerd) van deze indicatieve afstand af te wijken.

Planspecifiek

Deellocatie Ringweg ongenummerd

Om de situatie met betrekking tot spuitzonering inzichtelijk te maken, is navolgende kaart opgesteld. De kaart geeft alle percelen in een straal van 50 m om het perceel weer.

afbeelding "i_NL.IMRO.0984.TAM25012-on01_0014.png"

Kaart spuitzonering (bron: Michels Advies B.V.)

Uit de kaart volgt dat op verschillende percelen rondom het plangebied het gebruik van gewasbeschermingsmiddelen mogelijk is. De initiatiefnemer heeft met de eigenaren van deze percelen afspraken gemaakt over het gebruik hiervan. Hieruit vloeit voort dat op agrarische gronden 50 m rondom de beoogde woonbestemmingen geen chemische gewasbeschermingsmiddelen meer gebruikt mogen worden. Dit is geborgd in de regels bij dit plan. Het aspect gewasbeschermingsmiddelen levert daarmee geen belemmeringen op voor het initiatief.

Deellocatie Ysselsteynseweg 40

Het aspect gewasbeschermingsmiddelen is voor deze deellocatie niet relevant. Belemmeringen zijn daarmee niet aan de orde.

Het aspect gewasbeschermingsmiddelen levert hiermee geen belemmeringen op ten aanzien van het initiatief.

Hoofdstuk 5 Goede omgevingskwaliteit

In dit hoofdstuk wordt beschreven op welke wijze een goede omgevingskwaliteit wordt gewaarborgd en verder ontwikkeld door de voorgenomen ontwikkeling.

5.1 Zorgvuldig ruimtegebruik

De Ladder voor duurzame verstedelijking is een instructieregel voor zorgvuldig ruimtegebruik en tegengaan van leegstand. De instructieregel in artikel 5.129g Bkl regelt dat bij een wijziging van het omgevingsplan voor een nieuwe stedelijke ontwikkeling toepassing van de Ladder is vereist.

Artikel 5.129g Bkl geeft geen ondergrens aan. In uitspraken van de Afdeling bestuursrechtspraak van de Raad van State zijn hiervoor lijnen uitgezet. Bij woningbouw is vanaf 12 woningen sprake van een stedelijke ontwikkeling die Ladderplichtig is. De Raad van State heeft ook aangegeven dat geen sprake is van een nieuwe stedelijke ontwikkeling bij ontwikkeling van een bedrijventerrein of zeehaventerrein, of van kantoren, detailhandel, woningbouwlocaties of andere stedelijke voorzieningen in de vorm van een terrein met een ruimtebeslag van minder dan 500 m² of een gebouw met een bruto-vloeroppervlakte kleiner dan 500 m².

De Ladderonderbouwing beschrijft de behoefte aan de ontwikkeling. Als de ontwikkeling buiten het bestaand stedelijk gebied plaatsvindt, moet bovendien gemotiveerd worden waarom niet binnen het bestaand stedelijk gebied in die behoefte kan worden voorzien. De aard en omvang van de ontwikkeling bepalen het schaalniveau waarop de ruimtebehoefte wordt afgewogen.

Planspecifiek

Het verplaatsen van het bouwrecht van één woning kan niet aangemerkt worden als een nieuwe stedelijke ontwikkeling in de zin van de Ladder. Een verdere toetsing aan de Ladder is daarmee niet nodig.

Hiermee bestaat er voldoende inzicht in dit aspect dat wordt meegewogen in hoofdstuk 6.

5.2 Archeologie, cultuurhistorie en landschap

De essentie van het Europees beleid is dat voorafgaand aan de uitvoering van projecten onderzoek moet worden gedaan naar de aanwezigheid van waarden en daar in de ontwikkeling van plannen zoveel mogelijk rekening mee te houden. De essentie van deze wetgeving is behoud van archeologische resten zoveel mogelijk in de bodem en de bescherming van het cultureel erfgoed en landschap.

De Erfgoedwet en de Omgevingswet vormen samen het fundament voor de duiding en de bescherming van het cultureel erfgoed. De vuistregel voor de verdeling tussen Erfgoedwet en Omgevingswet is als volgt: de duiding van cultureel erfgoed en de zorg voor cultuurgoederen in overheidsbezit staat in de Erfgoedwet; de omgang met het cultureel erfgoed in de fysieke leefomgeving is geregeld in de Omgevingswet.

Voor gebouwde of aangelegde monumenten betekent dit dat de vergunningverlening voor het wijzigen van rijksmonumenten is geregeld via de Omgevingswet. Ook aanwijzing en omgang met beschermde stads- en dorpsgezichten gebeurt op grond van de Omgevingswet. Datzelfde geldt voor de omgang met archeologie in de fysieke leefomgeving (vergunningverlening en integratie in de planvorming).

Besluit kwaliteit leefomgeving

In het Bkl is ten aanzien van de bescherming een aantal beginselen geformuleerd (art. 5.130 Bkl). Deze beginselen richten zich op de omgang met monumenten die op grond van het omgevingsplan zijn beschermd, archeologische monumenten, (voorbeschermde) rijksmonumenten, beschermde stads- en dorpsgezichten en beschermde cultuurlandschappen. Daarnaast zijn in afdeling 8.8 van het Bkl regels gesteld voor de beoordeling van rijksmonumentenactiviteit en het verplaatsen van gebouwde monumenten.

Het gemeentelijk beleid over archeologie en cultuurhistorie is veelal opgenomen op de archeologische beleidskaart en/of de cultuurhistorische waardenkaart. Deze archeologische waarden en verwachtingen en de cultuurhistorische waarden zijn veelal vertaald in respectievelijk archeologische dubbelbestemmingen en cultuurhistorische dubbelbestemmingen opgenomen in het (tijdelijk deel van het) omgevingsplan of activiteitgericht in het gemeentebrede omgevingsplan. Indien het initiatief in deze (werkings)gebieden is gelegen, wordt hieraan getoetst.

Planspecifiek

Deellocatie Ringweg ongenummerd

Cultuurhistorie en landschap

Binnen het plangebied en in de directe omgeving zijn geen cultuurhistorisch waardevolle objecten zoals (rijks)monumenten of andere waardevolle objecten aanwezig. Ten aanzien van de kwaliteiten van het buitengebied is het initiatief getoetst aan het Ruimtelijk KwaliteitsKader. In paragraaf 3.5.7 is gemotiveerd dat het initiatief middels de landschappelijke inpassing hieraan een bijdrage levert.

Archeologie

Voor onderhavig initiatief is de archeologische verwachtingskaart van de gemeente Venray (2011) geraadpleegd. Navolgende afbeelding geeft hiervan een uitsnede. Ter plaatse van het plangebied geldt een lage archeologische verwachting. De uit te voeren werkzaamheden zijn daarmee in het kader van archeologie niet onderzoeksplichtig. Een onderzoeksplicht is ook niet opgenomen in de vigerende planologische situatie. Het aspect archeologie levert daarmee geen belemmeringen op voor het initiatief.

afbeelding "i_NL.IMRO.0984.TAM25012-on01_0015.png"

Uitsnede archeologische verwachtingskaart (bron: gemeente Venray)

Deellocatie Ysselsteynseweg 40

Ter plaatse van deze deellocatie vinden geen ingrepen plaats die van invloed zijn op cultuurhistorie of archeologie. Belemmeringen vanuit deze aspecten zijn daarmee niet aan de orde.

Hiermee bestaat er voldoende inzicht in dit aspect dat wordt meegewogen in hoofdstuk 6.

5.3 Ecologie

De Wet natuurbescherming (Wnb) is opgenomen in de Omgevingswet: de Aanvullingswet natuur, het Aanvullingsbesluit natuur en de Aanvullingsregeling natuur. Er is sprake van een beleidsneutrale overgang. Het huidige normenkader, de instrumenten en de bevoegdheidsverdeling voor het natuurbeschermingsrecht blijft ongewijzigd. Uitgezonderd van de toets ten aanzien van stikstof. De omgevingswaarden voor stikstofdepositie zijn vastgesteld op grond van artikel 2.15a van de Omgevingswet.

Ter bescherming van de natuur zijn in het Bkl diverse regels opgenomen. Deze regels komen grotendeels overeen met de regels die zijn opgenomen in de huidige Wet natuurbescherming. Het gaat hierbij in de eerste plaats om regels voor de gebiedsbescherming van aangewezen Natura 2000-gebieden, regels voor de soortenbescherming van te beschermen planten diersoorten (waaronder vogels) en regels ter bescherming van houtopstanden. Het gebieds- en soortenbeschermingsregime vloeit voor een belangrijk deel voort uit twee Europese richtlijnen, te weten de Vogelrichtlijn (79/409/EEG) en de Habitatrichtlijn (92/43/EEG).

Gebiedsbescherming

De Europese Vogel- en Habitatrichtlijn beschermt Natura 2000-gebieden. Als er naar aanleiding van projecten, plannen en activiteiten, afzonderlijk of in combinatie met andere plannen of projecten, mogelijkerwijs significante effecten optreden, dienen deze bij de voorbereiding van een ruimtelijk besluit in kaart te worden gebracht en beoordeeld. Natura 2000-gebieden hebben een externe werking, zodat ook ingrepen die buiten deze gebieden plaatsvinden en verstoring kunnen veroorzaken, moeten worden getoetst op het effect van de ingreep op soorten en habitats. Een ruimtelijk plan dat significante gevolgen kan hebben voor een Natura 2000-gebied kan alleen worden vastgesteld indien uit een passende beoordeling de zekerheid is verkregen dat het plan de natuurlijke kenmerken van het gebied niet zal aantasten. Indien deze zekerheid niet is verkregen, kan het plan worden vastgesteld, indien wordt voldaan aan de volgende drie voorwaarden:

  • 1. Alternatieve oplossingen zijn niet voorhanden;
  • 2. Het plan is nodig om dwingende redenen van groot openbaar belang, met inbegrip van redenen van sociale of economische aard; en
  • 3. De noodzakelijke compenserende maatregelen worden getroffen om te waarborgen dat de algehele samenhang van het Natura 2000-netwerk bewaard blijft. In afdeling 8.6 Bkl staat het beoordelingskader voor de omgevingsvergunning voor Natura 2000-activiteiten. Dit is door middel van het aanvullingsspoor Natuur gebeurd.

Soortenbescherming

Onder de Omgevingswet zijn veel dier- en plantsoorten beschermd. De bescherming richt zich op soorten van Europees belang, die onder de reikwijdte van de Vogel- en Habitatrichtlijn vallen, en op bepaalde soorten van nationaal belang. Soortenbescherming kan de vorm hebben van wet- en regelgeving, maar ook van fysieke maatregelen die bescherming, vestiging of uitbreiding van een soortenpopulatie stimuleren. Op grond van artikel 2.18 lid 1 sub f Omgevingswet zijn in beginsel de provincies hiervoor verantwoordelijk. Echter, ook decentrale overheden kunnen hierover actief beleid voeren. Hierbij kan worden gedacht aan het vaststellen van bijvoorbeeld een programma voor soortenbescherming. Door strikte formulering van een flora- en fauna-activiteit moet bij vrijwel alle activiteiten in de fysieke leefomgeving nagegaan worden of:

  • er soorten aanwezig zijn; en
  • welke soorten dat zijn.

In hoofdstuk 11 van het Besluit activiteiten leefomgeving wordt bepaald wanneer een vergunning nodig is.

Planspecifiek

Deellocatie Ringweg ongenummerd

Ten behoeve van voorliggende ontwikkeling is een onderzoek gedaan naar deze aspecten, waarvan het rapport is opgenomen in bijlage 4. De belangrijkste conclusies zijn in het vervolg van voorliggende paragraaf opgenomen.

Soortenbescherming

Uit het onderzoek blijkt dat met het naleven van algemene maatregelen, zoals het uitvoeren van werkzaamheden buiten het broedseizoen, het naleven van de algemene zorgplicht, en mitigerende maatregelen (steenuil) negatieve effecten op beschermde soorten kunnen worden voorkomen. Overtredingen zijn daarmee uit te sluiten. Voor het plan zijn daarmee geen aanvullende vergunningen of ontheffingen op grond van de Omgevingswet noodzakelijk.

Gebiedsbescherming

Het dichtstbijgelegen Natura 2000-gebied (Deurnsche Peel & Mariapeel) bevindt zich op circa 3,3 km ten noordwesten van de projectlocatie. Om de situatie met betrekking tot stikstof te beoordelen, zijn AERIUS-berekeningen uitgevoerd., zie bijlagen 5 en 6. Uit de berekeningen komt naar voren dat de aanlegwerkzaamheden en het gebruik van de nieuwe woning niet leiden tot een toename van de stikstofdepositie op Natura 2000-gebieden. Andere negatieve effecten zijn, gelet op de afstand en aard van de activiteiten, op voorhand uit te sluiten.

Deellocatie Ysselsteynseweg 40

Ter plaatse van deze deellocatie vinden geen ingrepen plaats die relevant zijn met betrekking tot ecologie. Belemmeringen zijn niet aan de orde.

Hiermee bestaat er voldoende inzicht in dit aspect dat wordt meegewogen in hoofdstuk 6.

5.4 Verkeer en parkeren

De omgevingsvisie van de gemeente moet een visie op verkeer en vervoer op gemeentelijk niveau bevatten. Het initiatief dient hieraan getoetst te worden. Daarnaast blijven de bekende richtlijnen vanuit het CROW bestaan.

Een ruimtelijke ontwikkeling zorgt vaak voor een verandering van het aantal verkeersbewegingen. Bij het toelaten van een nieuwe functie moet daarom worden aangetoond wat het effect is op de bereikbaarheid en verkeersafwikkeling. Daarbij dient in beeld te worden gebracht of er sprake is van een (extra) parkeerbehoefte voor auto's (en evt. ook fietsen en/of scooters). Er mag geen onaanvaardbaar effect zijn.

De gemeente stelt parkeerbeleid op met daarin parkeernormen waaraan nieuwe ontwikkelingen moeten voldoen. De activiteit dient dus aan het gemeentelijk beleid getoetst te worden.

Planspecifiek

Deellocatie Ringweg ongenummerd

Verkeersgeneratie

Het toevoegen van een woning leidt tot een zeer beperkte toename van het aantal verkeersbewegingen, Het plangebied wordt in de toekomstige situatie ontsloten door de Ringweg. Deze weg heeft meer dan voldoende capaciteit om de beperkte toename aan verkeersbewegingen te verwerken.

Parkeren

Uitgangspunt van het plan is dat in de toekomstige situatie geparkeerd wordt op eigen terrein. Bij de woning dienen 2 parkeerplaatsen te worden voorzien conform het gemeentelijke parkeerbeleid voor vrijstaande woningen. Op eigen terrein is hiervoor ruim voldoende ruimte aanwezig. De parkeerplaatsen zijn aangegeven op pagina 11 van het landschappelijk inpassingsplan (zie bijlage 1 bij de regels).

Deellocatie Ysselsteynseweg 40

Ter plaatse van deze deellocatie verdwijnt de mogelijkheid tot het oprichten van een bedrijfswoning, waarmee planologisch sprake is van een verkleining van de verkeersgeneratie en parkeerbehoefte. Negatieve effecten zijn hier niet aan de orde.

Hiermee bestaat er voldoende inzicht in dit aspect dat wordt meegewogen in hoofdstuk 6.

5.5 Duurzaamheid en klimaatadaptatie

Het klimaat verandert en steeds vaker worden we geconfronteerd met de gevolgen, zoals hitte, droogte, extreme neerslag en overstromingen. Klimaatverandering is in een vergaand stadium en de effecten en risico's voor onze samenleving worden steeds groter. Aan de ene kant moeten we de uitstoot van broeikasgassen verminderen, zodat de opwarming beperkt blijft. Aan de andere kant is het noodzakelijk om ons als samenleving aan te passen en voor te bereiden op de reeds ingezette klimaatveranderingen en de gevolgen daarvan. Niet alleen om schade te beperken, maar ook om kansen te benutten.

De nationale opgave voor klimaatadaptatie is beschreven in het Bestuursakkoord Klimaatadaptatie en het Deltaplan Ruimtelijke Adaptatie met daarin een prominente rol voor gemeenten. Lokale gevoeligheden voor klimaatverandering moeten in kaart worden gebracht en als integraal onderdeel van beleid daadkrachtig worden aangepakt. Daarbij is het van belang zowel te kijken naar aanpassingen aan de bestaande openbare ruimte als naar nieuwe ruimtelijke ontwikkelingen.

Planspecifiek (zie ook paragraaf 3.5.10)

Deellocatie Ringweg ongenummerd

Op basis van de klimaateffectatlas is in beeld gebracht welke risico's zich kunnen voordoen in het plangebied als gevolg van klimaatverandering.

Uit de kaartbeelden van de klimaateffectatlas is op te maken dat ter plaatse van het plangebied geen wateroverlast, hittestress, droogte of overstroming te verwachten valt.

Door het hemelwater binnen het plangebied te bergen en te laten infiltreren blijft het hemelwater ook in het gebied zelf. De geplande nieuwbouw is goed geïsoleerd conform de huidige normen. Daarmee voldoet de nieuw te bouwen woning aan de toegenomen koelbehoefte die kan ontstaan als een gevolg van hittestress. Daarbij zal het plangebied rondom de woningen zo groen mogelijk worden ingericht en met zo min mogelijk verharding, eveneens ter voorkoming van hittestress.

De nieuw te bouwen woning zal als energieneutraal worden gebouwd waarbij onder andere zonnepanelen worden aangebracht.

Deellocatie Ysselsteynseweg 40

Op deze deellocatie vinden geen ontwikkelingen plaats waarvoor het aspect klimaatadaptatie van belang is.

Hiermee bestaat er voldoende inzicht in dit aspect dat wordt meegewogen in hoofdstuk 6.

Hoofdstuk 6 Conclusie

Artikel 1.3 van de Omgevingswet, “maatschappelijke doelen van de wet”, bepaalt het volgende:

Deze wet is, met het oog op duurzame ontwikkeling, de bewoonbaarheid van het land en de bescherming en verbetering van het leefmilieu, gericht op het in onderlinge samenhang:

  • 4. bereiken en in stand houden van een veilige en gezonde fysieke leefomgeving en een goede omgevingskwaliteit, ook vanwege de intrinsieke waarde van de natuur, en
  • 5. doelmatig beheren, gebruiken en ontwikkelen van de fysieke leefomgeving ter vervulling van maatschappelijke behoeften.

De Memorie van toelichting licht dit verder toe:

Met behulp van de wet moet de samenleving in staat zijn om de fysieke leefomgeving op de gewenste kwaliteit te brengen, te houden én tegelijkertijd voldoende ruimte te laten voor activiteiten van burgers en bedrijven. Centraal staat de samenhangende zorg voor de fysieke leefomgeving welke integrale oplossingen moet bevorderen. Integraal betekent niet dat er geen sectorale beleidsdoelen meer zullen zijn. Zo zullen er doelen en randvoorwaarden blijven op het gebied van veiligheid, gezondheid, kwaliteit van ecosystemen, beschikbaarheid van hulpbronnen en behoud van cultureel erfgoed. Het is voor een goede integratie van belang dat sectorale doelen en randvoorwaarden helder en eenduidig zijn, omdat deze het uitgangspunt vormen voor de integrale zorg voor de fysieke leefomgeving. Mocht het zo zijn dat er in een bepaald geval een norm wordt overschreden dan is er de bestuurlijke afwegingsruimte. Die ruimte kan nodig zijn om (gemotiveerd) af te wijken van een norm in verband met bijvoorbeeld (bijzondere) lokale situaties, complexe gebieden of gebiedsoverstijgende belangen.

Om een omgevingsplan te kunnen wijzigen dient het te voldoen aan de wettelijk eis dat sprake is van een evenwichtige toedeling van functies aan locaties. Om deze vraag te beantwoorden is een afweging nodig tussen alle aspecten met betrekking tot het plan. Van belang daarbij is dat voldaan wordt aan de eisen voor gezondheid en veiligheid. Dit is van belang omdat hiervoor niet één algemene norm is maar dit tot stand komt als optelsom – en – weging van het totaal. Het kan gewenst zijn af te wijken van een, of meerdere, sectorale aspecten om uitvoering van een maatschappelijk gewenste activiteit of maatwerk in het individuele geval mogelijk te maken. Op deze manier kan afgewogen worden waarom een ontwikkeling bijdraagt aan de evenwichtige toedeling van functies aan locaties. Aan de hand van een voorbeeld is dit makkelijk duidelijk te maken: dat een woning meer geluid ontvangt van wegverkeer dan gewenst maakt nog niet dat het onaanvaardbaar is. Dat geldt voor veel woningen waar mensen gezond en veilig wonen. Dat geldt ook voor geur, omgevingsveiligheid, trilling, luchtkwaliteit of bodemkwaliteit. Maar als álle zes deze aspecten wat hoger zijn, of drie flink hoger of twee heel hoog – maar binnen de maximale norm – dan kan de conclusie anders zijn.

Planspecifiek

Uit voorgaande hoofdstukken blijkt dat er geen aspecten zijn die beperkend werken op de gewenste ontwikkeling. Er wordt voldaan aan de eisen voor gezondheid en veiligheid: ook als optelsom -en de weging daarbij- geldt dat gezien hetgeen in hoofdstuk 4 en 5 is te lezen (“veilige en gezonde fysieke leefomgeving“ en “een goede omgevingskwaliteit”) dit plan voldoet aan evenwichtige toedeling van functies aan locaties.

Hoofdstuk 7 Juridische planbeschrijving

7.1 Inleiding

Het TAM-IMRO omgevingsplan is een tijdelijke alternatieve maatregel (TAM) voor gemeenten die in de beginperiode van de Omgevingswet om enige reden nog niet in staat zijn om een omgevingsplan in STOP/TPOD op te stellen of te wijzigen. De TAM is primair bedoeld om urgente gebiedsontwikkeling te kunnen blijven faciliteren. Kort gezegd houdt TAM-IMRO omgevingsplan in dat de oude IMRO-standaard voor planvorming tijdelijk kan worden gebruikt onder de Omgevingswet (nieuw juridisch kader, oude techniek).

7.2 Juridische systematiek

Hoewel onderhavig initiatief gebruik maakt van bestaande techniek, wordt juridisch wel voldaan aan de regels van de Omgevingswet. De regels en verbeelding van voorliggend TAM-omgevingsplan zijn dan ook opgesteld conform de Standaard Vergelijkbare Bestemmingsplannen (SVBP). De SVBP geeft normen voor de opbouw van de planregels en voor de digitale verbeelding bij het plan. Dit plan is opgesteld conform de normen van de SVBP2012.

Het juridisch bindend gedeelte van het TAM-omgevingsplan bestaat uit planregels en bijbehorende verbeelding waarop de functies zijn aangegeven. De regels zijn onderverdeeld in een preambule en vier hoofdstukken:

  • Preambule;
  • Hoofdstuk 1: Inleidende regels;
  • Hoofdstuk 2: Functieregels;
  • Hoofdstuk 3: Algemene regels;
  • Hoofdstuk 3: Overgangsregels.

7.3 Toepassingsbereik TAM-omgevingsplan

Dit TAM-omgevingsplan (hierna: plan) wijzigt het omgevingsplan in die zin dat na hoofdstuk 22 van het omgevingsplan een hoofdstuk 22p wordt ingevoegd, bestaande uit de regels van dit plan. De hoofdstukken in de regels moeten gelezen worden als paragrafen van hoofdstuk 22p van het omgevingsplan Venray. Dit plan komt in het tijdelijke deel van het omgevingsplan. In de regels staat de verhouding tot de rest van het tijdelijke deel van het omgevingsplan.

In de regels staat ook de verhouding tot de rest van het tijdelijke deel van het omgevingsplan beschreven.

Er is een voorrangsregel opgenomen waarin staat dat het bouw- en gebruiksrecht van dit plan op deze locatie voorgaat op het bouw- en gebruiksrecht zoals dat in de geldende bestemmingsplannen staat. Overige regels blijven gelden op basis van de geldende bestemmingsplannen.

7.4 Beschrijving per functie

Onderhavig initiatief kent de volgende functies:

Wonen

Ten behoeve van de nieuwe woning binnen de deellocatie Ringweg ongenummerd wordt ter plaatse van het kadastrale perceel een woonfunctie opgenomen. Binnen het geprojecteerde bouwvlak is de woning na wijziging van het Omgevingsplan toegestaan. De toegestane omvang van de woning is geregeld in de regels bij dit plan.

Op de gronden binnen de deellocatie Ringweg ongenummerd met de aanduiding 'specifieke vorm van wonen uitgesloten - langdurig verblijf' (-sw-lv) is langdurig menselijk verblijf niet is toegestaan. Langdurig verblijf is pas toegestaan nadat binnen 50 m van de gronden met deze aanduiding het toepassen van gewasbeschermings- en bestrijdingsmiddelen en/of andere verspuitbare middelen op aangrenzende agrarische percelen niet meer mogelijk is.

Agrarisch

Ter plaatse van de deellocatie Ysselsteynseweg 40 blijft de agrarische functie, inclusief bouwvlak behouden. Enkel wordt de functieaanduiding voor het oprichten van een bedrijfswoning wegbestemd. De functieaanduiding voor een 'intensieve veehouderij' wordt vervangen door de functieaanduiding 'agrarisch bedrijf'.

Verder treden hier geen wijzigingen op.

Rondom de deellocatie Ringweg ongenummerd zijn, binnen een straal van 50 m, de bestaande agrarische bestemmingen aangeduid op de verbeelding. Op deze gronden is middels een aanduiding 'milieuzone – spuitvrije zone' geregeld dat daar geen gebruik mag worden gemaakt van gewasbeschermings- en bestrijdingsmiddelen en/of andere verspuitbare middelen die leiden tot schadelijke effecten voor het woon- en leefklimaat en/of het verblijfsklimaat van voor gewasbeschermings- en bestrijdingsmiddelen en/of andere verspuitbare middelen gevoelige functies.

Hoofdstuk 8 Overige aspecten

Behalve de beoordeling of er sprake is van een evenwichtige toedeling van functies aan locaties, dient ook ingegaan te worden op de aspecten participatie en kostenverhaal. In dit hoofdstuk worden deze aspecten behandeld om te kunnen beoordelen of het plan maatschappelijk en economisch uitvoerbaar is.

8.1 Participatie

Onder de Omgevingswet is het belang van participatie toegenomen. De gemeenteraad kan aangeven in welke gevallen participatie verplicht is en hoe dat vorm gegeven kan worden

Planspecifiek

Voor het initiatief heeft de initiatiefnemer de direct belanghebbenden in de omgeving op de hoogte gebracht. Een verslag van de omgevingsdialoog is opgenomen in bijlage 7.

8.2 Kostenverhaal

Het kostenverhaal is het door de overheid verhalen van kosten op een initiatiefnemer. Voor het verlenen van de dienst om stukken te beoordelen en samen met de initiatiefnemer uit te werken worden op basis van de legesverordening leges geheven. Maar het verhaal van te maken overheidskosten heeft ook betrekking op werken, werkzaamheden en maatregelen zoals bijvoorbeeld kosten voor het aanleggen van openbare voorzieningen zoals wegen, parkeren, civiele voorzieningen etc.. Dit kostenverhaal kan publiekrechtelijk vormgegeven worden via het Omgevingsplan, het projectbesluit of de omgevingsvergunning voor een buitenplanse omgevingsplanactiviteit. Overheid en initiatiefnemer kunnen een overeenkomst sluiten over kostenverhaal voorafgaand aan het besluit dat de aangewezen activiteit mogelijk maakt: de 'anterieure overeenkomst'. De Omgevingswet biedt daarvoor een grondslag in paragraaf 13.6.2 van de Omgevingswet. Onderdeel van deze overeenkomst is ook dat hier wordt vastgelegd op welke wijze omgegaan wordt met de nadeelcompensatie.

Planspecifiek

De ontwikkelingskosten komen geheel voor rekening van de initiatiefnemer. Voor de realisatie van het plan hoeft de gemeente geen investering te doen. De kosten die door de gemeente gemaakt worden voor het voeren van de procedure zijn opgenomen in de te sluiten anterieure overeenkomst.

Tevens zal een overeenkomst betreffende nadeelcompensatie worden afgesloten. Deze kosten komen eveneens geheel voor rekening van de initiatiefnemer.

Het plan is economisch uitvoerbaar.

8.3 Vooroverleg

In het kader van bestuurlijk vooroverleg is overleg gevoerd met de belanghebbende instanties.

Provincie Limburg

De provincie Limburg heeft aangegeven dat er geen aanleiding is tot het maken van opmerkingen en er geen aanleiding is om in de verdere procedure een zienswijze in te dienen. Wel wordt geconstateerd dat de natuurtoets (quickscan flora en fauna) op enkele onderdelen onvolledig is.

Reactie:

Naar aanleiding van deze constatering is er door de opsteller van de quickscan overleg geweest met de Provincie Limburg. Naar aanleiding van dat overleg is de quickscan flora en fauna (zie bijlage 4 bij deze toelichting) aangepast en aangevuld.

Veiligheidsregio (VRLN)

De Veiligheidsregio stemt in met de toelichting en conclusies, er wordt voldaan aan het beleid. Wel wordt het advies meegegeven om, indien er zaken als zonnepanelen, energieopslagsystemen of andere alternatieve en energiebronnen worden toegepast, dan in een zo vroeg mogelijk stadium in overleg te treden met de VRLN om

nadere eisen/uitganspunten te bespreken.

Waterschap Limburg

Het Waterschap Limburg kan zich vinden in de uitgangspunten van dit plan en heeft geen bezwaren tegen het plan. Wel adviseert zij om bij het realiseren van de woning en het bepalen van het bouwpeil, er rekening mee te houden dat de locatie in enige mate gevoelig is voor wateroverlast bij zeer hevige buien.

Reactie:

Het Waterschap Limburg heeft het advies gebaseerd op de kaart 'Klimaatscenario T=100 in 2100'. Deze kaart geeft de hoogteligging van de huidige terreinen aan. Bij de realisatie van de woning wordt het terrein enigszins opgehoogd, waarbij het vloerpeil van de woning op ongeveer 20cm boven de kruin van de weg komt te liggen. Van wateroverlast bij hevige buien zal dan (vanwege de hoogteligging) geen sprake meer zijn.